فروشگاه هنگ یانگ MEET & EAT
استودیوی طراحی LEL
MEET & EAT Hengyang Store
LEL DESIGN STUDIO

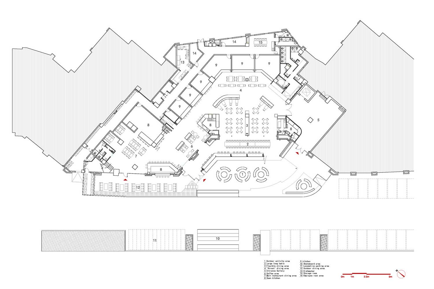
MEET&EAT (M&E) یک تیم تجاری اجتماعی است که بر ایجاد فضاهای غذایی چندمنظوره تمرکز دارد. آنها پیش از این پروژه مشهور “بیش از غذا” را در خیابان ژولوی شانگهای توسعه داده و در حال حاضر مدیریت چندین فضا را بر عهده دارند. برای M&E، فضاها نه تنها خدمات کامل غذایی ارائه میدهند، بلکه به عنوان یک فضای سوم در شهر عمل کرده و تجربیات اجتماعی منحصر به فردی را برای جامعه فراهم میکنند. این فضاها به گونهای طراحی شدهاند که آزاد، باز و مشترک بوده و قابلیت میزبانی رویدادها و فعالیتهای مختلف را دارند. فروشگاه MEET&EAT در هنگیانگ اولین مکان برند در هونان است. ما یک طرح رنگی قرمز نزدیک به رنگ برند را انتخاب کردیم تا هویت برند را تقویت کنیم. مجموعهای از عناصر قرمز یک سیستم فضایی ایجاد میکند که جو جدیدی را به مرکز خرید “بیویژگی” قدیمی القا میکند و فضایی تجاری زنده با هزینه کم و تصویری منحصر به فرد شکل میدهد سیستم عناصر قرمز، شامل جداول و صندلیهای شومینهدار در میدان ورودی اصلی، چارچوبهای فولادی قرمز در نمای ساختمان، ریلهای نور سقفی داخلی و چراغهای خیابانی، به عنوان نشانه فضایی عمل میکند.
یک چارچوب فولادی قرمز به طول ۴۰ متر مرز داخلی و خارجی را پوشش میدهد و به یک عنصر کلیدی در نمای ساختمان تبدیل میشود. این چارچوب یک میدان کوچک و دلنشین در ورودی ایجاد کرده و فضای ساختمان قدیمی را برجسته میکند. شیشههای شفاف بالایی نور خورشید و سایه را به داخل میآورند، در حالی که ایوانهای قرمز پایینی یک فضای نشیمن راحت ایجاد میکنند. در هوای دلپذیر، پنکه تاشو میتواند به طور کامل باز شود و فعالیتهای داخلی را به میدان گسترش دهد و مرز بین فضای داخلی و خارجی را محو کند. امکانات نمایشگاهی و سیستمهای نور و صدا نیز در چارچوب فولادی یکپارچه شدهاند. منطقههای اصلی عملکرد شامل یک ناحیه غذایی چندمنظوره مشترک، یک خیابان داخلی، یک فضای غذایی اصلی و چندین دکه غذایی محلی است که یا در کنار هم قرار دارند یا پراکندهاند. ناحیه غذایی مشترک فضایی چندمنظوره است که فعالیتهای مختلفی مانند معاشرت روزانه، غذا خوردن، بازارها و اجراهای کوچک را در خود جای میدهد و جوهای مختلفی برای استفاده انعطافپذیر فراهم میکند.
استودیو طراحی LEL به عنوان یک نهاد نوآور در زمینه طراحی معماری و داخلی در سطح بینالمللی شناخته میشود. این استودیو با هدف ایجاد فضاهای خلاقانه و کارآمد، همواره در تلاش است تا با استفاده از تکنیکهای مدرن و طراحی پایدار، پروژههایی با کیفیت بالا را به وجود آورد. استودیو طراحی LEL در سال 2015 تاسیس شد و از آن زمان به یکی از پیشروهای صنعت طراحی تبدیل شده است. بنیانگذاران این استودیو، با ترکیب تجربیات خود در زمینههای مختلف طراحی و معماری، تصمیم به راهاندازی استودیویی گرفتند که بتواند به خلق فضاهای منحصر به فرد و متنوع بپردازد. این استودیو با استفاده از خلاقیت و فناوریهای نوین، موفق به جذب مشتریان بینالمللی و انجام پروژههای بزرگ در سرتاسر جهان شده است. فلسفه طراحی در استودیو LEL بر پایه سه اصل اصلی استوار است: خلاقیت، کارایی و پایداری. این اصول نهتنها در طراحی فضاها، بلکه در انتخاب مواد، رنگها و نورپردازی نیز منعکس میشود.
- خلاقیت:
طراحان این استودیو همواره به دنبال ایدههای جدید و نوآورانه هستند. این استودیو معتقد است که هر پروژه باید داستان خاص خود را داشته باشد و به نوعی تجربهای منحصر به فرد برای کاربران فراهم آورد.
- کارایی:
علاوه بر زیباییشناسی، کارایی نیز در طراحی فضاها اهمیت دارد. استودیو LEL با تحلیل نیازهای کاربران، فضاهایی را طراحی میکند که به بهینهترین شکل ممکن از آنها استفاده شود.
- پایداری:
در دنیای امروز، توجه به مسائل زیستمحیطی و پایداری بسیار مهم است. استودیو LEL با استفاده از مصالح سازگار با محیطزیست و روشهای ساخت پایدار، به دنبال کاهش اثرات منفی بر روی کره زمین است.
استودیو LEL در طول فعالیت خود، پروژههای متعددی را در زمینههای مختلف طراحی کرده است. در این بخش، به بررسی برخی از پروژههای مهم این استودیو خواهیم پرداخت:
- مرکز فرهنگی ABC:
این پروژه به عنوان یک فضای چندمنظوره برای برگزاری رویدادهای فرهنگی و اجتماعی طراحی شده است. معماری این مرکز با خطوط مدرن و بازتابدهنده فرهنگ محلی، به ایجاد فضایی پویا و جذاب کمک کرده است. استفاده از نور طبیعی و فضای سبز در طراحی داخلی، احساس نزدیکی به طبیعت را در کاربران ایجاد میکند.
- هتل Boutique XYZ:
طراحی این هتل به گونهای است که به مهمانان تجربهای لوکس و دلپذیر ارائه دهد. استودیو LEL با ایجاد فضاهای راحت و زیبا، همواره در تلاش است تا خدماتی با کیفیت بالا به مهمانان ارائه کند. طراحی اتاقها و فضاهای مشترک با الهام از فرهنگ محلی، به مهمانان امکان میدهد که در عین راحتی، با فرهنگ منطقه آشنا شوند.
- فروشگاه Z:
این پروژه به عنوان یک فروشگاه مدرن و جذاب طراحی شده است که محصولات محلی را به نمایش میگذارد. استودیو LEL با استفاده از طراحی باز و نورپردازی مناسب، فضایی جذاب برای خرید ایجاد کرده است که مشتریان را به گشتوگذار و خرید ترغیب میکند.
تأثیرات استودیو LEL بر صنعت معماری
استودیو LEL با رویکرد نوآورانه خود در طراحی، تاثیرات چشمگیری بر صنعت معماری گذاشته است. این استودیو با ایجاد فضایی برای خلاقیت و نوآوری، الهامبخش طراحان و معماران دیگر در سطح جهانی شده است. برخی از تاثیرات این استودیو عبارتند از:
- ترکیب فناوری و طراحی:
استودیو LEL با استفاده از فناوریهای نوین در طراحی، مانند نرمافزارهای مدلسازی سهبعدی و واقعیت مجازی، به طراحان این امکان را میدهد که ایدههای خود را به واقعیت تبدیل کنند و تجربه کاربری بهتری را برای مشتریان فراهم آورند.
- ترویج طراحی پایدار:
توجه به مسایل زیستمحیطی و استفاده از مواد سازگار با محیطزیست در پروژههای استودیو LEL، به عنوان یک الگو برای سایر طراحان در صنعت معماری قرار گرفته است.
- ایجاد فضای اجتماعی:
طراحی فضاهایی که تعاملات اجتماعی را تسهیل میکند، به یکی از اصول کلیدی در پروژههای LEL تبدیل شده است. این رویکرد به تقویت جامعه و ارتقا کیفیت زندگی در محیطهای شهری کمک میکند. هر چند استودیو LEL موفقیتهای چشمگیری در زمینه طراحی به دست آورده، اما چالشهایی نیز وجود دارد. از جمله این چالشها میتوان به رقابت در صنعت معماری و نیاز به انطباق با تغییرات سریع در فناوری و نیازهای بازار اشاره کرد. با این حال، استودیو LEL با تمرکز بر نوآوری و خلاقیت، در تلاش است تا این چالشها را به فرصتهایی برای رشد تبدیل کند. این استودیو با رویکردی نوآورانه و خلاقانه در طراحی، به عنوان یکی از پیشروهای صنعت معماری شناخته میشود. این استودیو با تاکید بر خلاقیت، کارایی و پایداری، پروژههایی را ایجاد کرده که نه تنها زیبا و جذاب هستند، بلکه به نیازهای کاربران نیز پاسخ میدهند. با ادامه روند نوآوری و انطباق با تغییرات، میتوان انتظار داشت که استودیو LEL در آینده نیز به عنوان یک نیروی محرکه در صنعت معماری باقی بماند و تاثیرات مثبت خود را گسترش دهد.

فروشگاه MEET&EAT در هنگیانگ یک گام جسورانه در تحول فضاهای غذایی اجتماعی در چین به حساب میآید. به عنوان اولین مکان برند در استان هونان، این فروشگاه ترکیبی منحصر به فرد از کارکرد، جذابیت ظاهری و تعامل اجتماعی را به نمایش میگذارد. هدف این پروژه ایجاد فضایی فراتر از صرف غذا است؛ فضایی پر جنب و جوش که ارتباطات میان گروههای مختلف افراد را تقویت میکند. این مقاله به بررسی فلسفه طراحی، فضاهای عملکردی، تاثیر اجتماعی و دیدگاه کلی پشت فروشگاه MEET&EAT هنگیانگ میپردازد. فلسفه طراحی MEET&EAT بر مفهوم “فضای سوم” متمرکز است؛ مکانی برای گردهمایی که فراتر از خانه و محل کار باشد و در آن تعاملات اجتماعی رونق بگیرد. این مفهوم در زندگی شهری امروزی که در آن ارتباطات واقعی اغلب نادیده گرفته میشود، به ویژه حائز اهمیت است. فروشگاه هنگیانگ در تلاش است تا این خلا را پر کند و محیطی چندمنظوره فراهم آورد که معاشرت، صرف غذا و فعالیتهای فرهنگی مختلف را تشویق کند.
فروشگاه در هنگیانگ، شهری با میراث فرهنگی غنی و چشمانداز شهری پویا، واقع شده است و در مکانی استراتژیک قرار دارد که دید و دسترسی آن را تقویت میکند. طراحی معماری این فروشگاه با چارچوب فولادی قرمز و چشمنواز خود مشخص میشود که به عنوان یک عنصر بصری کلیدی عمل میکند. این چارچوب به طول ۴۰ متر نه تنها ورودی را تعریف میکند بلکه فضایی دنج و دلپذیر ایجاد میکند که رهگذران را به درون جذب میکند. استفاده از رنگ قرمز—رنگی که با شادی و جشن در فرهنگ چینی مرتبط است—هویت برند را تقویت کرده و محیط را با گرما و زندگی پر میکند. این انتخاب رنگ با عناصر شفاف شیشهای که اجازه میدهند نور طبیعی به داخل بیفتد، ترکیب میشود و فضایی دلپذیر و دعوتکننده ایجاد میکند.
چیدمان فروشگاه هنگیانگ به دقت برنامهریزی شده است تا انواع فعالیتها را تسهیل کند:
- ناحیه غذایی چندمنظوره مشترک:
در قلب فروشگاه، ناحیه غذایی مشترک قرار دارد که برای برگزاری هر چیزی از گردهماییهای اجتماعی غیررسمی تا رویدادهای سازمانیافته طراحی شده است. این فضای چندمنظوره به راحتی قابل تنظیم است تا فعالیتهای مختلفی را در خود جای دهد و امکان معاشرت روزانه، تجربههای غذایی، بازارهای موقتی و اجراهای کوچک را فراهم کند.
- خیابان داخلی:
با الهام از مفهوم بازارهای خیابانی پر جنب و جوش، خیابان داخلی با دکههای غذایی محلی که انواع لذتهای غذایی را ارائه میدهند، تزیین شده است. این طراحی نه تنها تشویق به گشت و گذار میکند، بلکه حس جامعه را تقویت میکند، زیرا بازدیدکنندگان میتوانند به راحتی از دکهها بازدید کنند و طعمهای مختلف را امتحان کنند.
- فضای غذایی اصلی:
این ناحیه به تجربه غذایی سنتیتری اختصاص دارد و شامل نشیمنهای راحت و فضایی دلپذیر است. این فضا به عنوان پسزمینهای برای گردهماییهای خانوادگی، جشنها و سایر رویدادهای غذایی عمل میکند.
- دکههای غذایی محلی:
این دکهها به گونهای طراحی شدهاند که یا در کنار هم قرار گیرند یا در فضا پراکنده شوند و مهارتهای غذایی محلی را به نمایش بگذارند و به بازدیدکنندگان این امکان را میدهند که از تنوع طعمها لذت ببرند. تاکید بر غذاهای محلی نه تنها از سرآشپزهای محلی حمایت میکند بلکه تجربه غذایی را برای مشتریان غنیتر میسازد.
یکی از ویژگیهای برجسته فروشگاه هنگیانگ، ادغام فناوری مدرن با تجربیات غذایی سنتی است. سیستم پنکه تاشو امکان انتقال بیوقفه بین فضاهای داخلی و خارجی را فراهم میکند و بهبود کلی جو را تسهیل مینماید. در هوای دلپذیر، این ویژگی به فضای داخلی اجازه میدهد تا به سمت میدان گسترش یابد و مرزهای بین فضای داخلی و خارجی را محو کند. علاوه بر این، امکانات نمایشگاهی و سیستمهای نور و صدا به طور هوشمند در چارچوب فولادی یکپارچه شدهاند. این امر اطمینان میدهد که فضا تنها کارآمد نیست، بلکه به اندازه کافی انعطافپذیر است تا بتواند رویدادهایی مانند نمایشگاههای هنری، اجراهای زنده و جشنوارههای فرهنگی را میزبانی کند. فروشگاه MEET&EAT هنگیانگ تنها یک مقصد غذایی نیست؛ بلکه یک بستر برای تعامل اجتماعی نیز به شمار میآید. با برگزاری رویدادهای مختلف—از جشنوارههای غذایی تا اجراهای فرهنگی—فروشگاه در تلاش است تا مردم را گرد هم آورد و حس تعلق را در میان ساکنان تقویت کند. طراحی فضا تعامل را تشویق میکند و امکان ارتباط و گفتوگوهای معنادار را برای بازدیدکنندگان فراهم میآورد. علاوه بر این، تأکید بر دکههای غذایی محلی از کسبوکارها و صنعتگران محلی حمایت میکند و فضایی برای نمایش مهارتها و محصولات غذایی آنها فراهم میآورد. این ابتکار نه تنها غذاهای محلی را ترویج میکند بلکه به تقویت اقتصاد محلی و افزایش جذابیت عمومی جامعه کمک میکند.

در دنیای امروز که به محیط زیست اهمیت بیشتری داده میشود، فروشگاه هنگیانگ همچنین شیوههای پایدار را در عملیات خود به کار میگیرد. استفاده از مواد سازگار با محیطزیست در ساخت و طراحی، به همراه سیستمهای روشنایی انرژیکارآمد، تعهد به کاهش تاثیرات زیستمحیطی پروژه را نشان میدهد. علاوه بر این، گنجاندن فضاهای سبز در طراحی به تنوع زیستی و بهبود کیفیت کلی محیط شهری کمک میکند. فروشگاه MEET&EAT هنگیانگ نمونهای از قدرت طراحی متفکرانه و ابتکارات اجتماعی-متمرکز است. با ایجاد فضایی که فراتر از صرف غذا میرود، این پروژه ارتباطات بین مردم را تقویت کرده و تجربه کلی شهری را بهبود میبخشد. با جو زنده، ویژگیهای نوآورانه و تعهد به فرهنگ محلی، MEET&EAT بهزودی به یک مکان محبوب در هنگیانگ تبدیل خواهد شد. با حرکت به جلو، درسهای آموخته شده از این پروژه ممکن است به عنوان یک الگو برای توسعههای آینده در زمینه غذا و فضاهای اجتماعی شهری عمل کند و بر اهمیت ایجاد محیطهایی تاکید کند که الهامبخش تعامل، جشن فرهنگ محلی و ترویج پایداری باشند. فروشگاه هنگیانگ نه تنها یک مکان است؛ بلکه یک دیدگاه برای آینده زندگی و غذاهای اجتماعی است که همه ما میتوانیم در جوامع خود به آن aspire کنیم.
طراحی داخلی این فروشگاه با هدف ایجاد فضایی گرم و دعوتکننده که تعاملات اجتماعی را تقویت کند، انجام شده است. این فضا با توجه به نیازهای کاربران و با بهرهگیری از طراحی مدرن و کارآمد، تجربهای بینظیر از صرف غذا و معاشرت را فراهم میآورد. فضای داخلی به گونهای طراحی شده است که احساس راحتی و صمیمیت را به بازدیدکنندگان القا کند. استفاده از رنگها، متریالها و نورپردازی هوشمند به ایجاد جوی دلنشین و شاداب کمک کرده است. رنگ قرمز، که به عنوان رنگ برند انتخاب شده، در عناصر مختلف فضا به کار رفته و حس انرژی و زندگی را به محیط میبخشد. در قلب طراحی داخلی، ناحیه غذایی مشترک قرار دارد که به عنوان مرکز فعالیتهای اجتماعی عمل میکند. این فضا با میزها و صندلیهای مختلف و راحت تجهیز شده است که امکان نشستن گروهی یا فردی را فراهم میآورد. طراحی منعطف این ناحیه به کاربران این امکان را میدهد که در طول روز به راحتی تغییرات را تجربه کنند؛ از صرف یک وعده غذایی گرفته تا برگزاری رویدادهای اجتماعی و فرهنگی.
خیابان داخلی به عنوان بخشی از طراحی، فضای متنوعی را برای دکههای غذایی محلی فراهم کرده است. هر دکه با طراحی خاص خود، طعمی منحصر به فرد را به بازدیدکنندگان ارائه میدهد. این دکهها به گونهای چیده شدهاند که تجربهای شبیه به بازارهای خیابانی را تداعی کنند، به طوری که مشتریان بتوانند به راحتی بین آنها گشتوگذار کنند و غذاهای مختلف را امتحان کنند. نورپردازی در طراحی داخلی فروشگاه نقش بسیار مهمی ایفا میکند. استفاده از نور طبیعی به واسطه شیشههای بزرگ و شفاف، به فضا حیات و تازگی میبخشد. در کنار آن، نورپردازی مصنوعی با طراحی مدرن و جذاب، فضایی گرم و صمیمی را برای تعاملات اجتماعی ایجاد میکند. برای کسانی که به دنبال فضایی آرام و خصوصیتر هستند، بخشهایی از فروشگاه به نشیمنهای کوچک و دنج اختصاص داده شده است. این فضاها به گونهای طراحی شدهاند که افراد بتوانند در آنها به دور از شلوغی و هیاهو، به استراحت و گفتگو بپردازند. طراحی این بخشها به گونهای است که در عین حفظ حریم خصوصی، امکان ارتباط با محیط اطراف را نیز فراهم میآورد. در طراحی داخلی از مواد طبیعی مانند چوب و سنگ استفاده شده است که حس گرما و نزدیکی به طبیعت را به فضا القا میکند. این انتخابها نه تنها زیباییشناسی محیط را تقویت میکنند بلکه با فلسفه پایدار بودن و احترام به محیطزیست نیز همخوانی دارند. طراحی داخلی فروشگاه با تاکید بر ایجاد فضایی دوستانه و چندمنظوره، تجربهای خاص از صرف غذا و معاشرت را به بازدیدکنندگان ارائه میدهد. با بهرهگیری از طراحی هوشمندانه و توجه به جزئیات، این فضا به یک مقصد اجتماعی محبوب تبدیل میشود که نه تنها برای صرف غذا بلکه برای برگزاری رویدادها و فعالیتهای فرهنگی نیز مناسب است.
این فروشگاه به عنوان یکی از پروژههای مهم طراحی معماری معاصر در چین شناخته میشود. تیم معماران این پروژه، شامل طراحان با تجربه و نوآور، با هدف ایجاد فضایی چندمنظوره که نیازهای اجتماعی و فرهنگی جامعه را برآورده کند، طراحی را آغاز کردند. این فروشگاه به عنوان یک مرکز اجتماعی و فرهنگی، نه تنها برای صرف غذا، بلکه برای تعاملات اجتماعی و فرهنگی نیز مورد استفاده قرار میگیرد. تیم طراحی شامل معماران و طراحانی است که پیشینهای قوی در پروژههای مشابه دارند. آنها با تجربه در طراحی فضاهای عمومی و تجاری، به دنبال ایجاد فضایی هستند که بتواند ارتباطات اجتماعی را تسهیل کند و تجربهای لذتبخش برای بازدیدکنندگان فراهم آورد. پیش از این، این تیم پروژههای موفقی را در شهرهای مختلف چین اجرا کرده و توانستهاند آثار ماندگاری را در زمینه معماری و طراحی شهری به ثبت برسانند. فلسفه طراحی معماران MEET&EAT بر اساس مفهوم “فضای سوم” است. این مفهوم به فضایی اشاره دارد که فراتر از خانه و محل کار عمل میکند و مکانی برای تعاملات اجتماعی و تجربیات مشترک فراهم میآورد. معماران در طراحی این فروشگاه سعی کردهاند فضایی ایجاد کنند که افراد بتوانند در آن به راحتی با یکدیگر ارتباط برقرار کنند و تجربیات جدیدی را به اشتراک بگذارند.
توجه به جنبههای پایدار و استفاده از مواد سازگار با محیطزیست یکی از اصول اصلی در طراحی این فروشگاه بوده است. معماران با انتخاب مصالح طبیعی و محلی، به دنبال کاهش تاثیرات منفی بر محیطزیست و ارتقا کیفیت زندگی در جامعه بودهاند. این رویکرد نه تنها به زیبایی محیط کمک میکند، بلکه به ایجاد فضایی سالم و پایدار نیز میانجامد. معماران در طراحی داخلی فروشگاه، به نورپردازی و استفاده از رنگها توجه ویژهای داشتهاند. استفاده از نور طبیعی از طریق پنجرههای بزرگ و شفاف، فضایی روشن و دلپذیر ایجاد کرده و احساس نزدیکی به طبیعت را تقویت میکند. همچنین، نورپردازی مصنوعی بهگونهای طراحی شده است که در طول روز و شب، جو مناسبی برای بازدیدکنندگان فراهم کند. معماران MEET&EAT با در نظر گرفتن فرهنگ و ویژگیهای محلی هنگیانگ، تلاش کردهاند فضایی ایجاد کنند که نمایانگر هویت فرهنگی منطقه باشد. طراحی دکههای غذایی محلی و فضای اجتماعی، به نمایش غذاهای محلی و فرهنگ جامعه کمک میکند. این اقدام نه تنها به ترویج فرهنگ محلی میانجامد بلکه به ایجاد حس تعلق در میان ساکنان نیز کمک میکند. یکی از ویژگیهای بارز طراحی این فروشگاه، انعطافپذیری فضاهاست. معماران با ایجاد فضایی که میتواند به راحتی برای فعالیتهای مختلفی مانند بازارهای موقتی، نمایشگاههای هنری و اجراهای زنده تنظیم شود، امکان استفاده چندمنظوره را فراهم کردهاند. این امر به افزایش تعاملات اجتماعی و فرهنگی در فضای فروشگاه کمک میکند. معماران فروشگاه MEET&EAT در هنگیانگ با ترکیب طراحی مدرن و توجه به نیازهای اجتماعی، فضایی را ایجاد کردهاند که نه تنها برای صرف غذا بلکه به عنوان یک مرکز فرهنگی و اجتماعی عمل میکند. این پروژه نشاندهنده رویکرد نوآورانه در طراحی فضاهای تجاری است و میتواند الگوی مناسبی برای سایر پروژهها در آینده باشد. تلاشهای معماران در ایجاد فضایی دلپذیر و جذاب، میتواند به جذب جامعه و تقویت حس تعلق در میان ساکنان کمک کند.
مدارک فنی



































