ویک بوتیک اثر حنا مبارکی
فینالیست و راهیافته به مرحله دفاع از آثار یازدهمین طراحی داخلی ایران، 1402
VEEK BOUTIQUE / Hanna Mobaraki

ویک بوتیک VEEK BOUTIQUE
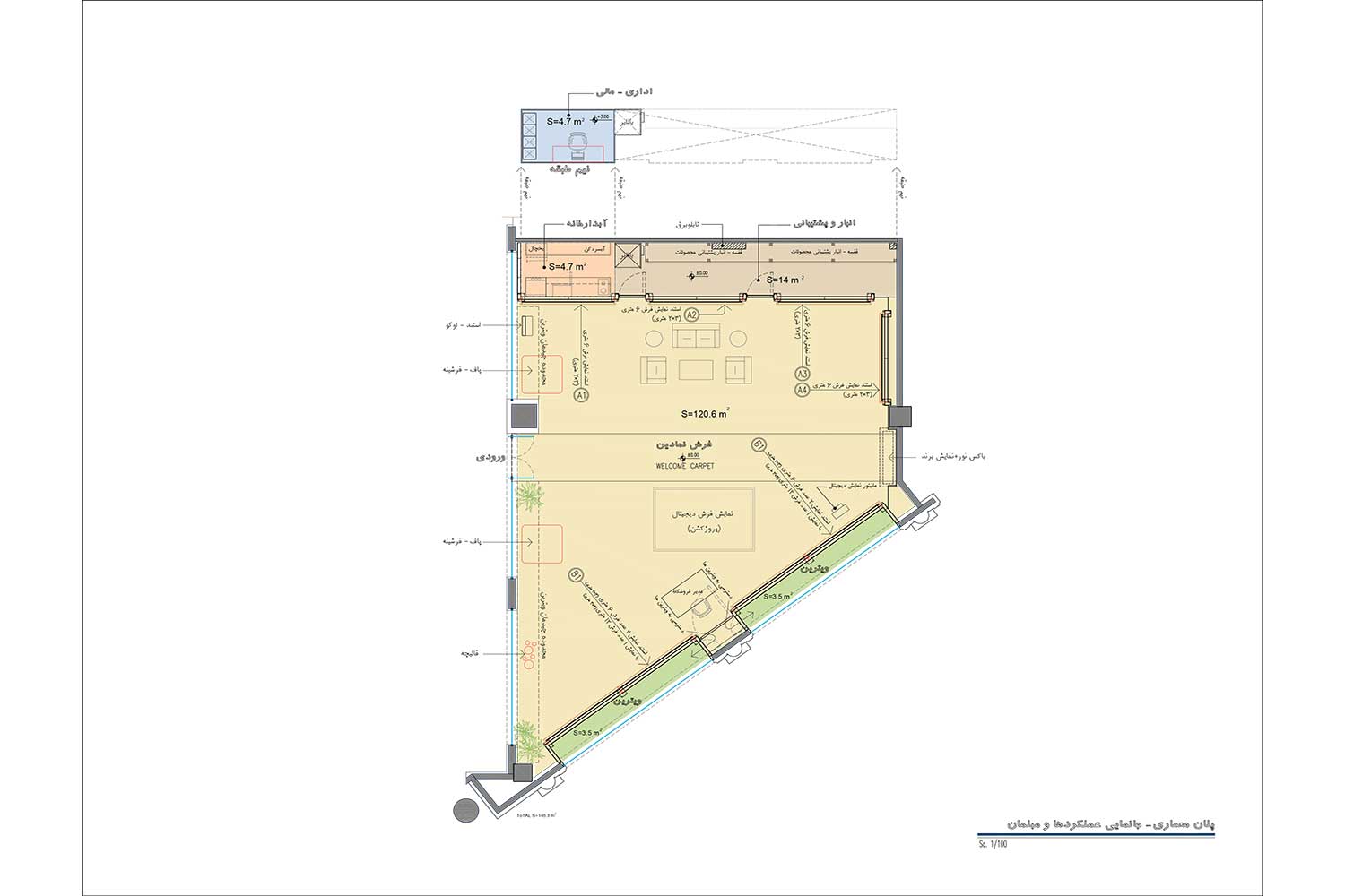
پروژه از آنجا آغاز شد که یکی از تولیدکنندگان عمده فرش برای طراحی داخلی فضایی به مساحت تقریبی 160 مترمربع در مرکز خرید سانا (بلوار اندرزگو) برای نمایش محصولات خاص خود به دفتر ما مراجعه کرد. به پیشنهاد تیم طراحی نام بوتیک برای آن انتخاب شد و در روند طراحی سعی شده است جلوه های لوکس بودن با استفاده از طراحی داخلی به منظور نمایش هرچه بهتر محصولات به کار گرفته شود.
ایده های طراحی داخلی فروشگاه فرش ویک بوتیک بر مبنای دیاگرام زیر شکل گرفته است:
- ایده بلک باکس (جعبه سیاه): نقطه محوری کانسپ طراحی فروشگاه، ایده بلک باکس یا جعبه سیاه است که از طراحی فضاهای نمایشی نظیر سالن های تئاتر و سینما الهام گرفته شده است. بدین ترتیب که با بخشیدن رنگی تیره به جداره های فضا (کف، سقف و جداره) و قطع ارتباط حسی مخاطب با فضای بیرون ، تمام توجه و تمرکز بیننده به سمت بوم، صفحه نمایش و در خصوص فروشگاه فرش به سمت استندهای نمایش فرش معطوف شود و در کنار استفاده از سایر تکنیک های حسی ( پخش صوت و رایحه مطبوع و …) نوعی تمرکز و جذابیت بیشتر برای مخاطب ایجاد نماید. معتقدیم افزایش این تمرکز و توجه مخاطبان بر روی مضمون اصلی، متضمن نیل به هدف اصلی فروشگاه یعنی بالابردن راندمان فروش خواهد بود.
- ایده فرش نمادین (Red Carpet): از دیرباز گستردن فرش قرمز در پیشاهنگ فضاها و بناها، دو پیام ادای احترام و خوش آمدگویی را توامان به بیننده القا نموده است. ما این مفهوم را با ایجاد نمادی از قدرت فناوری تولید فرش ماشینی ( امکان تولید فرشی سفارشی و با طرحی خاص) و نیز قدرت طراحی فرش مجموعه پیوند زده و اقدام به گستراندن فرشی نمادین از محل ورود به فروشگاه نموده ایم که چشم را در انتهای مسیر آن با حرکتی عمودی به سمت لوگوی ویک بوتیک هدایت می کند.
- ایده فضای نشستن و مهمان نوازی: یکی از خصایل فرهنگی ایرانی که با قدمت فرش گره خورده است مفهوم مهمان نوازی ایرانیست. در نظر گرفتن مکانی آراسته جهت نشستن و پذیرایی و گفتگو در فضایی آرام و توام با احترام تاثیری انکارناپذیر در ایجاد حسی مثبت برای خریدار و تعمیق وفاداری نسبت به برند خواهد داشت. این امر از طریق پیش بینی فضای نشیمن همراه با مبلمان و اکسسوری طراحی شده ویژه برای این قسمت میسر شده است.
- چیدمان فروشگاهی یا چیدمان بصری(Visual Merchandising): از عوامل اصلی ترغیب مشتریان به صرف زمان طولانیتر در فروشگاه، خرید اقلام بیشتر و درنهایت تجربه خرید بهتر است، که از تأثیرات مشهود آن بر رفتار مصرفکننده میتوان به افزایش علاقه و وفاداری مشتریان به برند مربوطه اشاره کرد. در طراحی فروشگاه ویک بوتیک تمرکز چیدمان بصری برای نمایش محصل یعنی فرش ها از طریق استندهای طراحی شده ویژه برای نمایش فرش ( با زمینه تیره و در ترکیب با استیل طلایی) همراه با نورپردازی مخفی و موضعی انجام شد. این تمرکز بصری با شنیدن نوای ملایم موسیقی و پخش عطر رایحه ای دل انگیز در فضا حواس مخاطب را به نحوی مطلوب درگیر با موضوع اصلی می نماید.
- محصولات جانبی مرتبط با فرش: ایده عرضه محصولات جانبی مرتبط با فرش نظیر تولید محصولاتی چون نیمکت فرشینه یا پاف و نیز اکسسوری های خاص به عنوان محصولات جانبی قابل عرضه با متریال فرش، کانسپت بوتیک را برای مجموعه تقویت می نماید و علاوه بر انتقال مفهوم سبک زندگی لوکس (متناسب با هدف فروشگاه)، قدرت و توان تولیدی مجموعه را به رخ مخاطب می کشد.

VEEK BOUTIQUE
“The interior design ideas for a boutique shop are based on the following diagram:
- Black Box Concept: The central concept of the shop’s design is the ‘Black Box’, inspired by the design of display spaces such as theater and cinema halls. This is achieved by darkening the space’s surfaces (floor, ceiling, and walls) and disconnecting the viewer’s sensory connection with the outside space. This ensures that all the attention and focus of the observer is directed towards the ground, the display, and, in the case of a carpet store, towards the carpet displays. Along with the use of other sensory techniques (sound diffusion, ambient scents, etc.), we believe this increased focus and attention on the main theme will ultimately lead to the primary goal of the store, which is to increase sales performance.
- Symbolic Carpet Concept (Red Carpet): The tradition of spreading red carpets in front of spaces and buildings has long conveyed messages of respect and welcome to the viewer. We have expanded on this concept by creating a symbol of the power of machine-made carpet production (the ability to produce custom and uniquely designed carpets) and the strength of the carpet design. We have extended the symbolic carpet from the entrance of the store, guiding the eye toward the store’s logo with a vertical movement at the end of the path.
- Sitting and Hospitality Space Concept: One of the enduring cultural qualities of Iran, closely tied to the art of Persian rug-making, is the concept of Iranian hospitality. Providing a well-furnished place for sitting, reception, and conversation in a peaceful atmosphere, combined with respect, will have an undeniable positive impact on the customer’s shopping experience and their loyalty to the brand. This is achieved by designing seating spaces with specially crafted furniture and accessories for this area.”
- Store Layout or Visual Merchandising: One of the primary factors that encourage customers to spend more time in a store, buy more items, and ultimately have a better shopping experience is the effects of visual merchandising. These effects are directly related to consumer behavior and can be attributed to increased customer interest and loyalty to the respective brand. In the design of the “Vik Boutique” store, the focus of visual merchandising is on displaying the products, namely, carpets, through specially designed stands for carpet display (with a dark background and in combination with golden accents), along with concealed and localized lighting. This visual focus, along with the soft music and the pleasant aroma of fragrances in the space, engages the audience effectively with the main theme.
- Related Carpet Accessories: The idea of offering related products such as carpeted mats or rugs, as well as special accessories as side products made with carpet materials, enhances the boutique’s concept. In addition to conveying the concept of a luxurious lifestyle (in line with the store’s objective), it highlights the production capability and power of the collection to the customers.
تصاویر در حال ساخت

مدارک فنی








































