منزل آقای کاظمی اثر هوشنگ سیحون
شمیران، تهران، 1337
Kazemi Residence, designed by Houshang Seyhoun
Shemiran, Tehran, 1958

منزل آقای کاظمی اثر هوشنگ سیحون
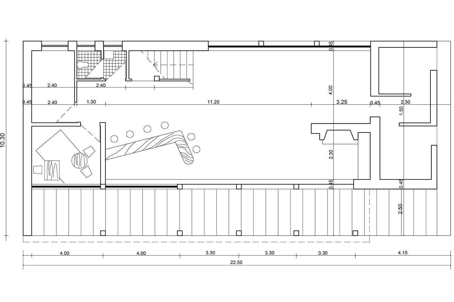
پروژهی منزل آقای کاظمی بهعنوان نمونهی موفقی از پارادایم پلان آزاد، یکی دیگر از اصول پنجگانهی معماری مدرن در طراحی فضاهای مسکونی است. اگر در پروژهی منزل و دفتر کار هوشنگ سیحون، دوگانگی زبان معماری در جایجای پروژه –از دیوار پوششی فاقد بازشو گرفته تا زبان معماری پوسته و فضاهای داخلی- دیده میشود، خوانش سیحون از پارادایم “پلان آزاد” در پروژهی کاظمی بیشتر متأثر از ریچارد نویترا بوده است تا لو کربوزیه. در تعریف لو کربوزیه از پلان آزاد، این آزادی در حقیقت در قالب یک ساخت منظم و انسجامیافته در هندسهی پلان تأمین میشود، در حالی که در کارهای نویترا، پلان آزاد از چینش عملکردها در کنار یکدیگر چنان لحاظ میگردد که تداوم سیرکولاسیون میان عملکردها به صورت پیوسته در انتظام فضایی پلان احیا شود.
از شاخصههای پروژههای مسکونی طراحیشده توسط نویترا در دههی پنجاه میلادی، میتوان به تمرکز شدید بر حذف حداکثری حد فاصلهای عرف میان فضاهای داخلی و خارجی اشاره کرد. ردی از تایپولوژی خانهی شیشهای، که بهوضوح، دسترسی حداکثری بصری بین فضای داخلی و خارجی را تامین میکند، در پروژهی منزل آقای کاظمی دیده میشود. از یک سو دیوار پوششی به ارتفاع دو طبقه که به فضای ایوان نگاه میکند و از سوی دیگر، پنجرههای نواری که در کنج میچرخند، شفافیت حداکثری بنا را تامین میکنند.
خانهی کاظمی، بهوضوح یک چیدمان فضایی تولید میکند که امکان استفاده از امکانات فضای باز برای کسانی که در داخل این ساختمان زندگی میکنند را فراهم میآورد. در داخل، تمام ریزفضاها در ارتباط با جدارهی شفاف بنا طراحی شدهاند و به این جداره نگاه میکنند. همچنین تقسیمات نما و خطوط سازمان سازهای بنا در دیالوگی بصری از یکدیگر تبعیت میکنند. خطوط دقیق تفکیککنندهی کمپوزیسیون نما، متناسب با خطوط دقیق سازهایِ پیشآمدگی سقف ایوان بوده و ضخامت حداقلیِ این کنسول، تناسبات سازهای پاویون بارسلونا –اثر میس وان در روهه- را یادآور میشود و پوستهی سایبان که در منتهاالیه ایوان قرار دارد، نور واردشده به بخش دیوار پوششی را تا حدودی فیلتر میکند، ضمن آنکه کنتراستِ شفافیتِ ترکیب دیوار پوششی و پنجرههای نواری پیچیده در کنج، با صلبیت حجم سنگی، همنشینی جالبی را به وجود آورده است.
پلانهای باقیمانده از پروژه در طبقهی اول ناهمخوان هستند و به نظر میرسد که در طراحی نخست، طبقهی همکف به صورت یک مستطیل کامل طراحی شده، در حالی که عکسهای باقیمانده از پروژه، طبقهی همکف را نیز به صورت یک L نمایش میدهد. این شکست در پلان، امکان ارتباط بصری با فضاهای مجاور به ایوان دو پوسته را فراهم میکند.

Kazemi Residence, designed by Houshang Seyhoun
The Kazemi Residence stands as a successful example of the Free Plan paradigm, one of the five principles of modern architecture, applied in residential design. While in Houshang Seyhoun’s House and Office, a duality of architectural language can be observed throughout the project — from the blind cladding wall to the dialogue between the architectural language of the shell and that of the interior — Seyhoun’s interpretation of the Free Plan paradigm in the Kazemi Residence appears to be more influenced by Richard Neutra than by Le Corbusier. In Le Corbusier’s conception, the Free Plan achieves its freedom within a disciplined and coherent geometric order. In contrast, Neutra’s approach to the free plan emerges through the arrangement of functions in a way that restores spatial continuity and fluid circulation among them. A defining feature of Neutra’s residential projects from the 1950s is the intense focus on minimizing the conventional boundaries between interior and exterior spaces. A clear trace of the glass house typology—which maximizes visual connection between inside and outside—can be observed in the Kazemi Residence. On one side, a two-story cladding wall faces the veranda, while on the other, corner-wrapping ribbon windows provide the building with a sense of maximum transparency. The Kazemi House distinctly generates a spatial configuration that enables its inhabitants to extend their use of space into the open air. Inside, all subspaces are designed in relation to the transparent façade, visually oriented toward it. Moreover, the façade divisions and structural lines follow a visual dialogue, harmonizing with one another. The precise compositional lines of the façade correspond to the structural layout of the veranda’s roof projection. The slender thickness of this cantilever recalls the structural proportions of Mies van der Rohe’s Barcelona Pavilion, while the canopy screen at the edge of the veranda filters the incoming light through the cladding wall. At the same time, the contrast between the transparency of the combined cladding wall and corner windows and the solidity of the stone volume creates a compelling interplay. The remaining floor plans of the project reveal certain inconsistencies: the initial design appears to have conceived the ground floor as a complete rectangle, while existing photographs depict it as an L-shaped configuration. This subtle break in plan enhances the visual connection with the spaces adjacent to the two-layered veranda façade.
مدارک فنی




















