مـایـکل گـریـوز، ترجمه‌ی مینا حنیفی واحد
مـعمــاری و اُبـــژه‌هــا، بخش نخست | نویسنده: گراهام هارمن، ترجمه: آیدین توکلیان

مایکــل گریــوز
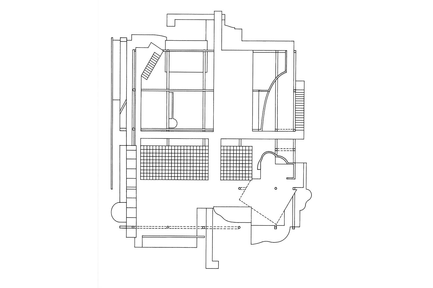
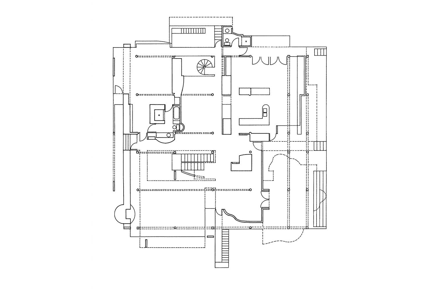
خانه‌ی اسنایدرمن
فورت واین، ایندیانا، آمریکا، 1977-1969
ترجمه‌ی مینا حنیفی واحد

این خانه برای سَنفُرد و جوی اسنایدرمن با هدف سکونت یک خانواده در منطقه‌ی فورت واینِ ایندیانا، طراحی و ساخته شده است. به این خانه لقب تورـ‌دوفرانس مدرنیسم متاخر را نسبت داده اند. این خانه، یک اثر بسیار خلاقانه و پیچیده از گریوز بود که در زمان خود کاملا آوانگارد جلوه می نمود، اما در حقیقت این بنا برای عملکرد خود چندان هم موفق نبود.
خانواده‌ی اسنایدرمن، بیست سال در این خانه زندگی کردند و سپس آن را به یک دلال فروختند (به سال 1997)، که از آن زمان به بعد دیگر کسی ساکن آن خانه نشد؛ اما در طول این زمان دچار بازسازی، تغییر و تخریب شده است. از ویژگی های این خانه، بالکن های پیش‌آمده، شبکه ی ستون‌های فولادی در فضای بیرونی، دیوارهای امتدادیافته تا ورای مرز سقف و البته نقاشی دیواری به طول 6 متر بوده است که کار مایکل گریوز می باشند. این نقاشی، چندی پیش، از دیوارهای خانه برداشته شد و امروز در موزه ی هنر ایندیاناپلیس در شهر زادگاه گریوز نگهداری می شود.
خانواده ی اسنایدرمن دلیل خود برای فروش و ترک خانه را ایرادهای متعدد سازه ای ذکر کرده و گفته بودند از سقف مسطح خانه که با شرایط جوی محیطی سازگاری نداشت، دائما آب می چکید. عدم تعادل حرارتی و تهویه ی صحیح در ماه های سرد و گرم سال نیز در تمام آن دو دهه، مکررا وجود داشت و بارها با تعمیر جزئیات مختلف خانه دست به گریبان بوده و سعی در رفع آن‌ها داشتند، اما در نهایت آن را واگذار کرده و از آن خانه نقل مکان کردند.
خانه ی اسنایدرمن علی‌رغم ارزش بصری و جذابیت ظاهری، به تراژدی پروژه ای ناکارامد و ناموفق تبدیل شد که عملا اتلاف انرژی و سرمایه بود. کسر وسیعی از خانه، نمای شیشه ای داشت که به ‌دلیل تک لایه بودن، تبادل حرارتی زیادی را ایجاد می نمود و با اینکه انرژی زیادی صرف دمای متناسب داخل می شد، اما همچنان در تابستان ها بسیار گرم و در زمستان‌ها سرد بود. البته با تعریفی که فیلیپ جانسون در آن سال ها از «معماری خوب» می کرد، این اتفاق قابل پیش بینی بود. حقیقت این است که در آن سال ها ایده از اجرا و نمایش توانمند ایده از کیفیت اجرا پیشی گرفته بود و اولویت داشت. خصوصا برای سفیدها که به شدت بر مبانی خود تاکید می نمودند ــ هرچند در انتها، گریوز که خود را از همه بیشتر مقید به کیفیت کار می خواند، این کار را ارائه داد.
این اثر به مثابه نقاشی ای است که در بعد سوم توسعه یافته و در خلال این توسعه، مملو از پر و خالی ها شده است. بسیاری از احجام و المان های به کار رفته در طرح غیرعملکردی، کاربردی هستند. این عناصر تنها یک عملکرد دارند و آن «بیان زیبا» می باشد. اگر مجموعه ی صفحات سپید و خاکستری به کار رفته در طرح را ستون فقرات آن بدانیم، آنگاه احجام فرمال رنگی و نرده های ساده، دو حد انتهایی این ستون هستند. یکی حجیم، رنگی و پُر‌کننده، دیگری نحیف، باریک، سفید و تکمیل‌کننده . خصوصا نرده ها در جزئیات سازی پروژه در نگاه ناظر بیرونی که به چشم یک بازدید‌کننده از گالری به این تابلو می نگرد، نقش دارند.

انتشار: سه‌شنبه, 9 سپتامبر, 2025معماری, مقالات دسته بندی هابرچسب ها: ,