دفتر مرکزی گروه صنعتی بستانچی اثر سروش روغنیان و الهه موسوی
چهارمین شب معماران، فینالیست و راه یافته به مرحلهی دفاع از آثار دوازدهمین طراحی داخلی ایران بخش عمومی، 1403
,Bostanchi Industrial Group Central Office / Soroosh Roghanian

طراحی دفتر اداری گروه صنعتی بستانچی:
شرکت بستانچی، شرکتی پیشرو در طراحی، تولید و اجرای سیستمهای تاسیسات مکانیکال پروژههای بزرگم قیاس میباشد. این شرکت تصمیم به تجمیع دفترهای کوچک مقیاس خود و ایجاد دفتری جدید در طبقهی هفتم یک ساختمان اداری، واقع در منطقهی فرشته تهران، به مساحت 750 متر مربع گرفت. طراحی این دفتر، از برهم نشینی دو لایهی اصلی شکل گرفت: لایهی اول در پاسخگویی به نیازهای فضاهای اداری و ایجاد فضایی کارآمد برای کارمندان بود و لایهی دوم در توجه به هویت شرکت بستانچی و محصولات تولیدی آنها و بسط و گسترش آن در فضا ایجاد گردید تا فضایی جذاب برای مراجعه کنندگان نیز ایجاد کند.
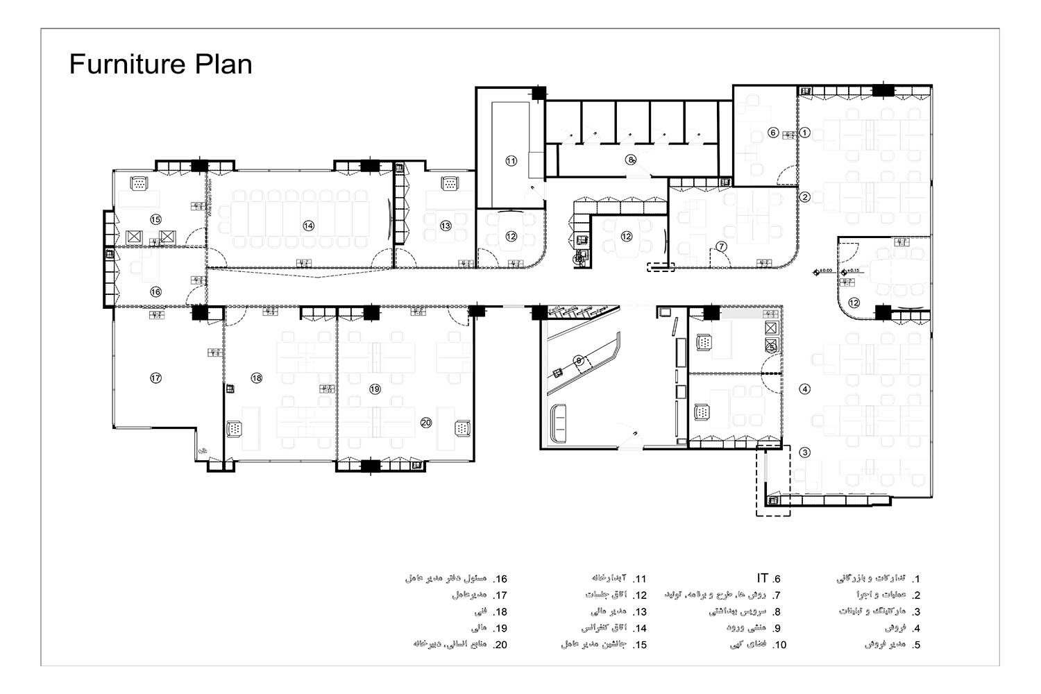
چیدمان فضایی مبتنی بر کارایی: در طراحی این دفتر، یکی از چالشهای اصلی چیدمان فضاها بود، توجه به دپارتمانهای گوناگون و حجم تاثیرات صوتی متفاوت آنها، در کنار تعداد زیاد 70 پرسنل که میبایست در فضایی مناسب جانمایی شوند. با توجه به ماهیت فعالیت شرکت بستانچی، جداسازی فضاهای پر سر و صدا از کم سر و صدا از اولویتهای اصلی بود.
دپارتمانهای پر سر و صدا مانند بخش فنی و مهندسی در فضاهای بسته و دپارتمانهای کم سر و صدا مانند مدیریت و امور مالی در فضاهای باز جانمایی شدند. این چیدمان، تمرکز و آسایش کارکنان را در هر بخش به طور چشمگیری افزایش میدهد و به بهبود راندمان کاری و ارتقای کیفیت خدمات ارائه شده منجر میشود و علاوه بر آن از بسته شدن زیادی فضا جلوگیری کرد.
ورودی: فیلتری هماهنگ با هویت شرکت: با عبور از ورودی دفتر بستانچی، با تجربهای متفاوت و نوآورانه روبرو میشویم. فضایی تاریک و دعوت کننده، مخاطب را از روشنایی بیرون به داخل هدایت میکند. در این مسیر، دیواری پوشیده شده با فنهای کوچک به صورت پیکسلی، رد عبور مخاطب را به نمایش میگذارد. با حرکت هر قدم، تعدادی از فنها روشن میشوند و نوری ملایم و جریانی از هوای خنک در فضا پخش میگردد. این ایده نوآورانه، علاوه بر ایجاد فضایی چشمگیر و جذاب، به تهویه مطبوع ورودی نیز کمک میکند.
بسط هندسه فنها در فضا: در ادامه طراحی، حرکت فنها و هندسه ایجاد شده از طریق آنها در تمامی فضا گسترش یافت. این هندسه در نورپردازی سقف ورودی، نوری تاکیدی به فضای کانتر ورودی داد و علاوه بر آن تمامی نورهای آویز در راستای این هندسه شکسته شکل گرفت. گرافیکهای فضایی و سقف فضاهای جلسات با هماهنگی از این فرم، فضایی پویا و تاکیدی را ایجاد کرد. تمامی فضاهای مربوط به دپارتمانها در رنگهای خنثی و طوسی طراحی شد و نقطههای تاکیدی به آن اضافه شد. این فضاها که شامل فضای کنفرانس، جلسات گروهی و مدیریت بود، با رنگ و فرمهای متفاوت شاخص شد. در انتخاب رنگهای این فضاها از رنگهای سازمانی شرکت استفاده شد. پروژه بستانچی تلاشی بود در راستای ایجاد فضای اداری کارآمد و خلاقانه که در عین حال که پاسخگو نیازهای کارمندان است به مخاطبان بیرونی و مراجعه کنندگان نیز توجه دارد و تجربهای متفاوت از حضور در فضایی اداری گروهی که تولید کننده سیستمهای تهویه است میدهد.
چهارمین شب معماران ایران، 1403
نام پروژه: دفتر مرکزی گروه صنعتی بستانچی
دفتر طراحی: دفتر معماری شباهنگ
معماران: سروش روغنیان، الهه موسوی
تیم طراحی: رضا خاموشی(اینستاگرام: rezakh9)
سرپرست اجرا: عماد سوار (اینستاگرام: emadsavarr)
سرپرست کارگاه: معین زندی(اینستاگرام: zandimoein)
سی جی آرتیست: حسین انصاری (اینستاگرام: hosein.ansari.cg)
طراح گرافیک محیطی: سبا موسوی (اینستاگرم: sabtitude)
دیاگرام: کیمیا مهیاری (اینستاگرام: kimiyamahyari)
عکاس: سارنگ فرزام فر (اینستاگرام: sarang.farzamfar)
کارفرما: آقای بستانچی
مساحت: 750 مترمربع
تاریخ پروژه: 1401
وضعیت: ساخته شده
اینستاگرام: soroosh.roghanian / elahe.musavii / shabahang_office

Project Name: Headquarters of Bostanchi Industrial Group
Design Office: Shabahang Architecture Office
Architects: Soroosh Roghanian, Elahe Mousavi
Design Team: Reza Khamoushi (Instagram: rezakh9)
Construction Supervisor: Emad Savar (Instagram: emadsavarr)
Site Supervisor: Moein Zandi (Instagram: zandimoein)
CG Artist: Hosein Ansari (Instagram: hosein.ansari.cg)
Environmental Graphic Designer: Saba Mousavi (Instagram: sabtitude)
Diagram: Kimia Mahyari (Instagram: kimiyamahyari)
Photographer: Sarang Farzamfar (Instagram: sarang.farzamfar)
Client: Mr. Bostanchi
Area: 750 m²
Project Date: 2022
Status: Built
Instagram: soroosh.roghanian / elahe.musavii / shabahang_office
Bostanchi Industrial Group Central Office
Bostanchi Company is a leading company in the design, production and implementation of mechanical installation systems for large-scale projects. This company decided to consolidate its small-scale offices and create a new office on the seventh floor of an office building, located in Fereshte area of Tehran, with an area of 750 square meters. The design of this office was formed by the combination of two main layers: the first layer was to respond to the requirements of office spaces and create an efficient space for employees, and the second layer was to pay attention to the identity of Bostanchi company and expand their products in the designed space to create an attractive atmosphere for visitors.
Spatial arrangement based on efficiency: in the design of this office, one of the main challenges was the arrangement of spaces, paying attention to the various departments and the volume of their different sound effects, along with the large number of 70 personnel who should be placed in a suitable space. Considering the character of Bostanchi company’s activity, separating noisy spaces from low noise was one of the main priorities. Noisy departments such as technical and engineering departments were placed in closed spaces and quiet departments such as management and financial affairs were placed in open spaces. This arrangement significantly increases the concentration and comfort of employees in each department and leads to the improvement of work efficiency and the improvement of the quality of the services provided, and in addition, it prevents the space to seem it’s closed .
Entrance: a filter in harmony with the company’s identity: passing through the entrance of Bostanchi’s office, we encounter a different and innovative experience. And inviting atmosphere leads the audience from outside to inside. In this path, a wall covered with small fans in pixel form displays the track of the audience. With each step, a number of fans are turned on and a soft light and a stream of cool air are spread in the space. This innovative idea, in addition to creating an impressive and attractive space, also helps the air conditioning of the entrance. Expanding the geometry of the fans in the space: In the continuation of the design, the movement of the fans and the geometry created through them was expanded throughout the space. This broken geometry was formed. Spatial graphics and the ceiling of the meeting spaces in harmony with this form created a dynamic and emphatic atmosphere. All the spaces related to the departments were designed in neutral and gray colors and emphatic points were added to it. These spaces, which included the conference space, group meetings and management, were identified with different colors and forms. In choosing the colors of these spaces, the company’s organizational colors were used .
The Bostanchi project was an effort to create an efficient and creative office space that, while responding to the needs of employees, also pays attention to external audiences and visitors, and gives a different experience from being in the office space of a group that produces ventilation systems.


















































