ساختمان مسکونی میان، اثر محمد ابراهیمزاده
هفتمین کتاب سال معماری معاصر ایران، 1403
MIYAN Residence / Mohammad Ebrahimzadeh


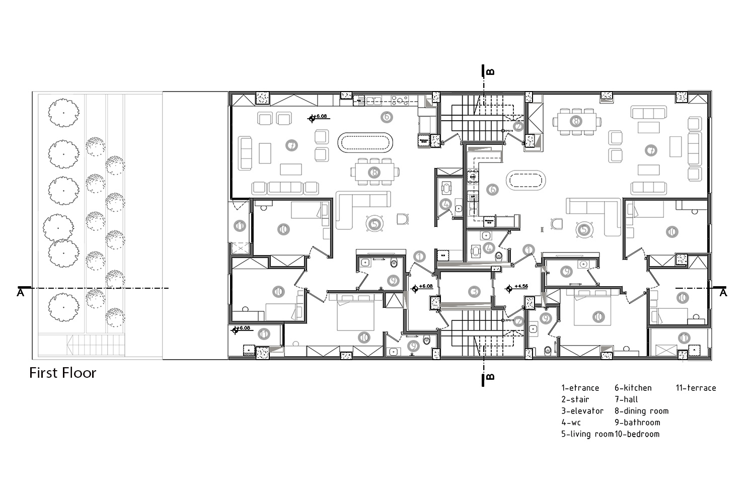
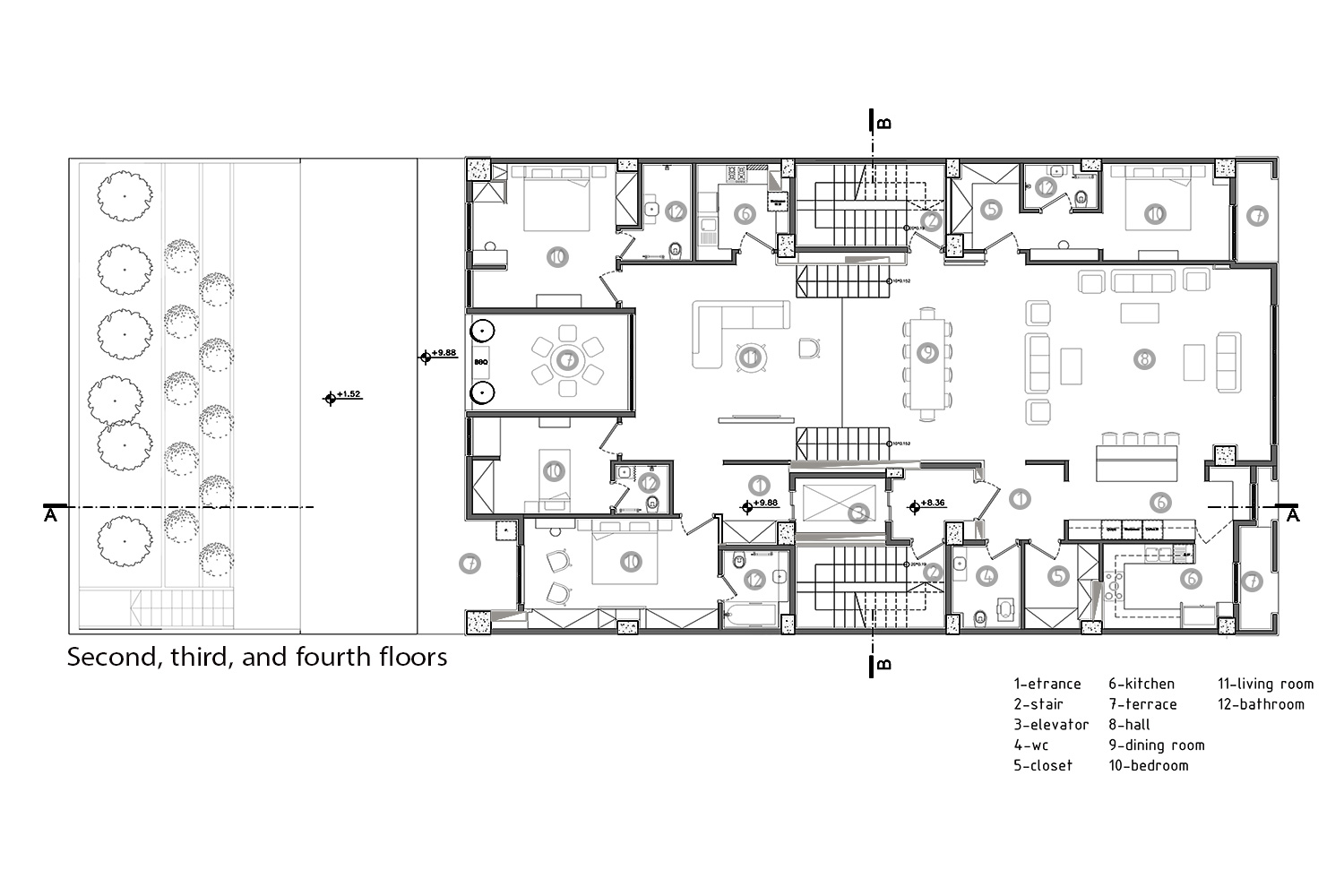
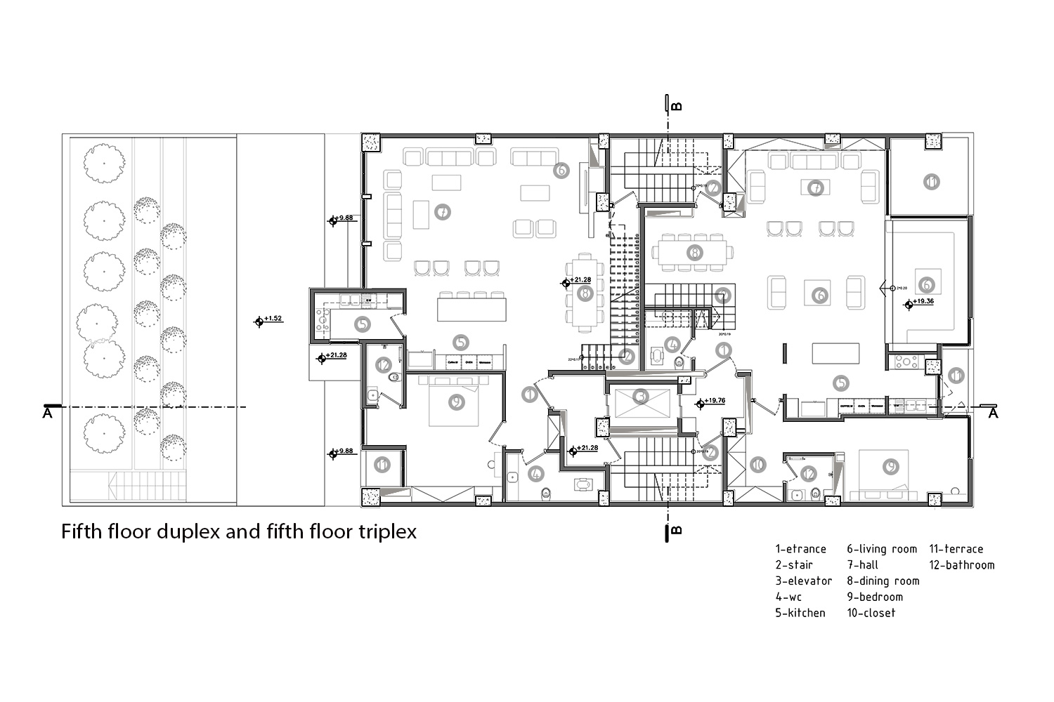
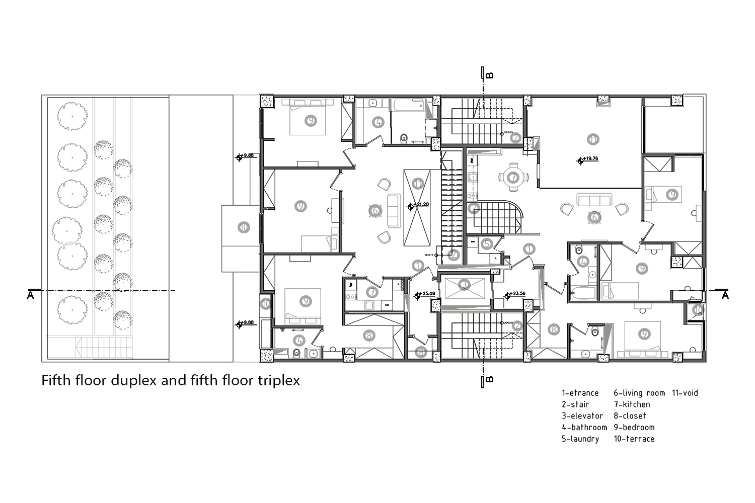
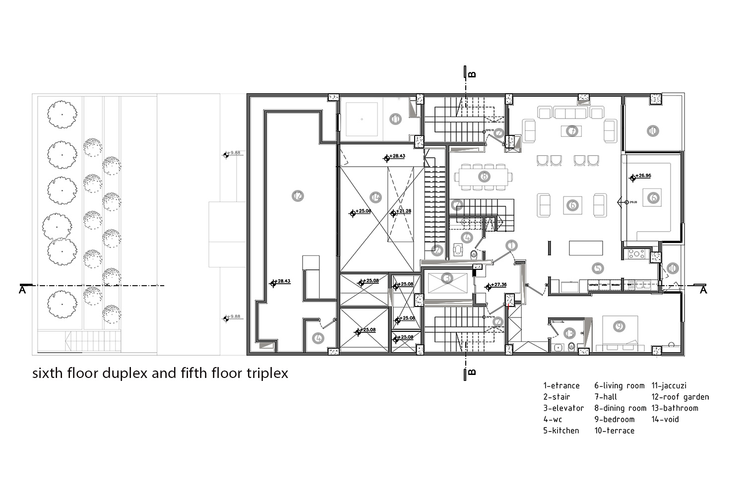
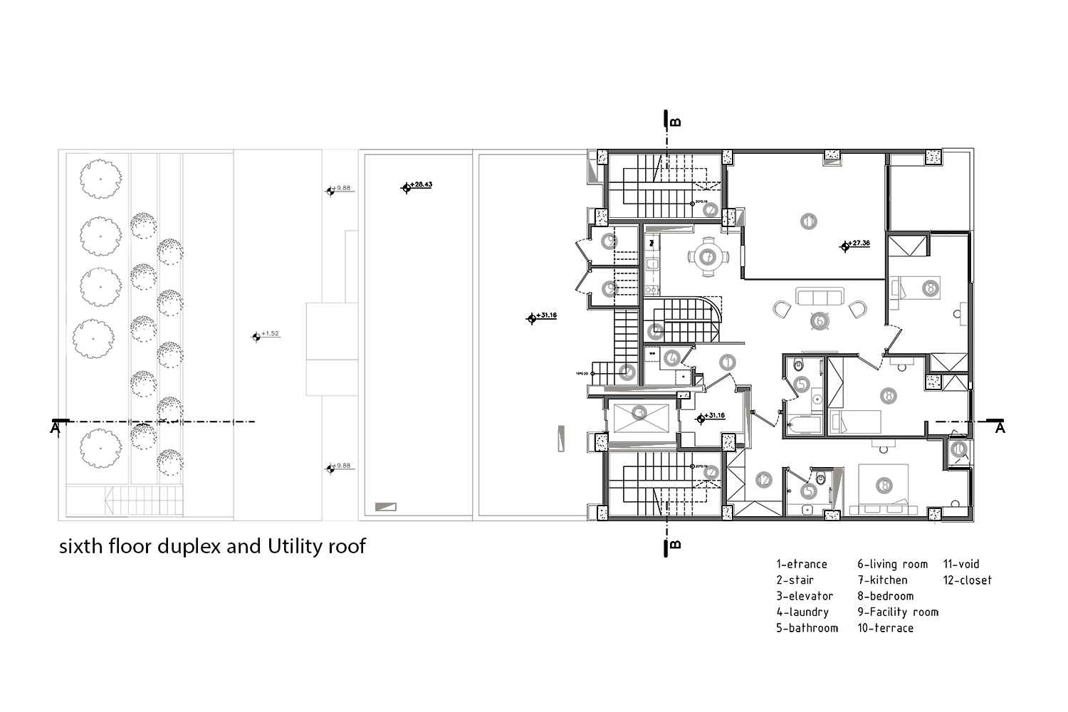
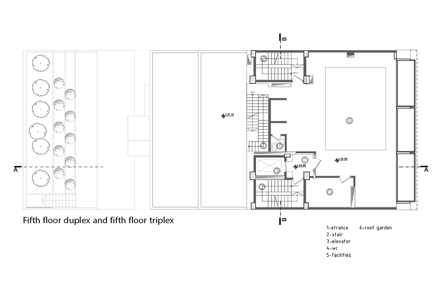
پروژهی مسکونی «میان» در یکی از محورهای مواصلاتی شهر مشهد، بزرگراه کلانتری واقع شده است. این پروژه در تلاش بوده تا با نگاهی دیگر به مسکن شهری، از کلیشههای رایج فاصله بگیرد و ساختاری متفاوت را در قالب یک ساختمان ۹ واحدی ارائه دهد. بنا از پنج تیپ پلانی متمایز تشکیل شده که هر کدام کیفیت فضایی خاص خود را دارند. این تنوع پلان، در عین حفظ انسجام کلی پروژه، به کاربران امکان انتخاب از میان گزینههایی با سازمان فضایی متفاوت را میدهد؛ انتخابی که فراتر از صرفا متراژ، بر پایهی تجربهی فضایی و زیست فردی شکل میگیرد. یکی از ویژگیهای شاخص این پروژه، ایجاد شکست در فرم، حجم و سازهی ساختمان از میانهی آن است. این تصمیم در طراحی نهتنها به تعریف بهتر فضاهای داخلی کمک کرده، بلکه باعث شکلگیری واحدهایی با یک میانطبقه (دوبلکس) در دو واحد و یا دو میانطبقه (تریبلکس) در یک واحد و در سه واحد دیگر با ساختاری شکسته شده است. در این پروژه تراسهایی با نگاه کاربردی نسبت به نیازهای مخاطب در ضلع جنوب ساختمان طراحی شده که به عمق فضا کشیده شدهاند. این تراسها به دو دلیل، با نگاه ویژهای در طراحی به عنوان یکی از ملزومات مهم در نظر گرفته شدهاند: یکی قرار گرفتن تراسها در عمق و کارایی بهتر آنها در نتیجهی حفظ فضاهای خصوصی و دیگری ایجاد دید افقی در راستای شمال به جنوب، از فضای سبز تراس و دید به کوههای جنوب و فضای سبز باغ ملکآباد مشهد که در شمال پروژه قرار گرفته است. توجه به حضور تراس به عنوان فضای نیمهباز، پاسخی است به نیاز روزافزون کاربران معاصر به اتصال با فضای باز، تهویهی طبیعی و ایجاد فرصتهایی برای تجربهی زیستپذیرتر در دل ساختارهای متراکم شهری. این شکست در حجم و فرم همچنین موجب تفکیک موثر فضاهای عمومی و خصوصی در ساختمان شده است. این تفکیک فضایی به ساکنان این امکان را میدهد که در بخش خصوصی واحد خود زندگی کنند و تنها در مواقع خاص و در صورت نیاز به پذیرایی از مهمانان، از فضاهای عمومی استفاده نمایند. این طراحی نه تنها به حفظ حریم خصوصی و آسایش ساکنین کمک میکند، بلکه به طور قابل ملاحظهای مصرف انرژی را کاهش داده و از هدررفت انرژی در فضاهای غیرضروری جلوگیری میکند. توجه به بعد سوم نما باعث شکلگیری مرز جداکننده بین واحدهای دوبلکس و تریبلکس و همچنین واحدهای فوق با سایر واحدها شده است. این تفکیک به صورت سهبعدی در بعد سوم نمایان شده و حجم را از سطوح تخت جدا کرده است. ورودی ساختمان با دو گودال باغچه طراحی شده است که از طریق یک پلهی معلق به لابی متصل میشود، به طوری که ضمن تعریف فضایی مستقل برای ورود، ارتباط بصری با بیرون نیز حفظ گردد.
معماری معاصر ایران: مسکونی
_______________________________________
نام پروژه: ساختمان مسکونی میان
عملکرد: مسکونی
دفتر طراحی: استودیو معماری پی
معمار: محمد ابراهیمزاده
همکاران طراحی: مهشید گویا، نوشین عطارزاده
طراحی و معماری داخلی: محمد ابراهیمزاده، مهشید گویا، نوشین عطارزاده
گرافیک: مهشید گویا
کارفرما: محمد ابراهیمزاده، احسان خاموشی
مجری: محمد ابراهیمزاده، مهشید گویا، وحید کامل
نورپردازی: مهدی حاجیزاده
مهندس تاسیسات: مهدی پزشکیراد
نوع تاسیسات: مینی چیلر
مهندس سازه: بهزاد نظامدوست
نوع سازه: بتنی
آدرس پروژه: مشهد، بین کلانتری 8 و 10
مساحت زمین: 510 متر مربع
زیربنا: 3400 متر مربع
تاریخ شروع – پایان ساخت: 1403-1400
عکاس پروژه: استودیو دیمن (مصطفی دلبریان).
وبسایت: piarchitects.ir
ایمیل: piarchitectsir@gmail.com
اینستاگرام: piarchitectsir

Project Name: Miyan Residence
Function: residential
Office: PI Architects
Lead Architect: Mohammad Ebrahimzadeh
Design Team: Mahshid Gooya, Nooshin Attarzadeh
Interior Design: Mohammad Ebrahimzadeh, Mahshid Gooya, Nooshin Atarzadeh
Graphic: Mahshid Gooya
Client: Mohammad Ebrahimzadeh, Ehsan Khamooshi
Executive Engineer: Mohammad Ebrahimzadeh, Mahshid Gooya, vahid kamel
Lighting: Mahdi Hajizadeh
Mechanical Installations: Mahdi pezeshkirad
Mechanical Structure: chiller
Structural Engineer: Behzad Nezamdoost
Structure: concrete
Location: Between kalantari 8 and 10, Kalantari Highway, Mashhad, Iran
Total Land Area: 510 m2
Area of Construction: 3400 m2
Date: 2021-2024
Photographer: Diman Studio(Mostafa Delbarian).
Website: piarchitects.ir
Email: piarchitectsir@gmail.com
Instagram: piarchitectsir
“Miyan” residential project is located on one of the main thoroughfares in Mashhad-Kalantari Highway. This project aims to rethink the notion of urban housing by breaking away from conventional patterns and offering a distinctive nine-unit residential structure. The design consists of five unique floor plan types, each providing its own spatial quality. This variety, while maintaining the overall coherence of the project, allows users to choose among options based on spatial experience and individual living preferences-not merely square footage. One of the project’s standout features is the intentional break in the form, volume, and structure at the building’s midpoint. This decision not only enhances the definition of interior spaces but also results in units with split-level configurations: two duplex units, one triplex unit, and three units with fragmented internal layouts. Functional terraces have been incorporated on the southern side of the building, extending deeply into the mass. These terraces serve two major purposes: first, their recessed design enhances usability while maintaining privacy; second, they allow for horizontal visual connections from south to north-framing views of the southern mountains and the green landscape of Malekabad Garden in the north of the site. The emphasis on the terrace as a semi-open space responds to modern user’s increasing need for connection to the outdoors, natural ventilation, and a more livable experience within dense urban environments. This volumetric articulation also creates an effective separation between public and private zones within the building. It enables residents to live comfortably in their private areas and use public spaces only when needed-such as for hosting guests. This thoughtful layout not only preserves privacy and comfort but also contributes to significant energy efficiency by reducing unnecessary energy use. The attention to the third dimension in the facade design emphasizes the separation between duplex and triplex units and other units, creating a three-dimensional visual identity that breaks away from flat surfaces. The entrance of the building features two sunken gardens connected to the lobby via a suspended staircase. This creates a distinct spatial identity for the entrance while maintaining visual continuity with the outside.























































