ساختمان مسکونی شمارهی یازده، اثر فرهاد باقرزاده چهارجوئی، فرزاد باقرزاده چهارجوئی
هفتمین کتاب سال معماری معاصر ایران، 1403



ساختمان مسکونی شمارهی یازده، از مجموعه پروژههای کارفرمایی است که در شهر مشهد به صورت پیوسته در حال فعالیت است. ضوابط حاکم بر ساخت و ساز برای بلوکهای شهری مشابه زمین این پروژه (حدود 600 متر مربع)، بارگذاری با سطح اشغال مصوب 60 درصد و تراکم مصوب360 درصد را تعریف کرده است.
فضای باز 40 درصدی که از عرصهی پروژه، پس از بارگذاری کالبد بنا باقی میماند، صرفا، نقش مفصل ارتباطی بین ساختمانی 6 طبقه و معبر دسترسی را گرفته که 19 خانواده و مهمانهایشان از آن گذر میکنند تا به آپارتمانشان بروند.
این فضای باز، دیگر نقش آن حیاط خصوصی که روزگارانی در خانههای ویلایی، حیاط زندگی، دورهم جمع شدن خانواده، ارتباط با طبیعت و یافتن آرامش بود را نمیتواند به عهده بگیرد، بلکه صرفا باقیماندهی عرصهی زمین پس از جانمایی کالبد بنا بر روی آن است.
بنابراین مسئلهی طراحی، به جای تمرکز بر “معماری توده”، متمرکز بر “معماری فضا” شد.
الف- در تعریف دسترسیهای پروژه، دسترسی پیاده را از طریق این حیاط تعریف کرده و با بخشیدن سهمی از حیاط به پیادهرو شهری (از طریق عقبنشینی در جدارهی آن)، پلازایی در مقیاس بنای خود، شکل دادیم.
ب- با بهرهگیری از الگوی گودال باغچه، زیرزمین را از فضای کور و بیکیفیت ساختمانهای امروزی به فضای زنده، سبز و بستری مناسب برای فعالیتهای جمعی مانند بازی کودکان و برگزاری مراسم تبدیل کردیم. همچنین، از طریق ارتباط بصری و فیزیکی پیاده و سواره، به حیاط عمومی پویایی و حرکت اضافه کردیم.
ج- با طراحی پلی سبز از میان گودال باغچه، گذار ورودی را از پلازای شهری به درون بنا تعریف کردیم.
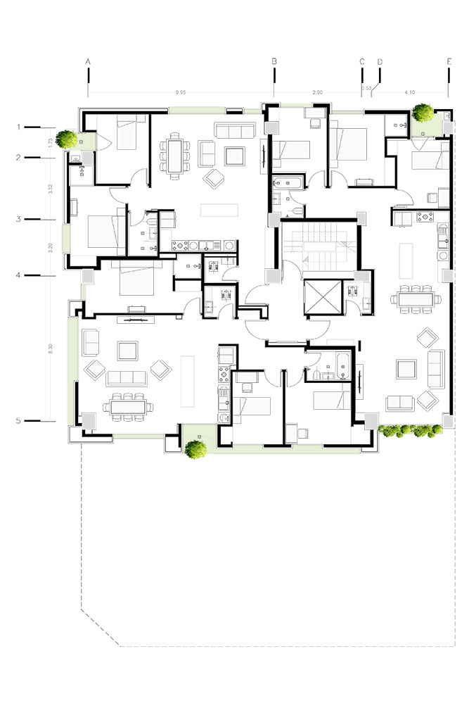
د- یک واحد مسکونی در طبقهی همکف ساختمان تعریف شده بود، که کیفیت آن به دلیل مجاورت با حیاط عمومی و عبور مخاطب پیاده از کنار پنجرههایش، کاهش پیدا میکرد، راهکار این مسئله را در تعریف حیاط خصوصی برای واحد همکف که از طریق گودال باغچه از عرصهی عمومی تفکیک شده است، یافتیم.
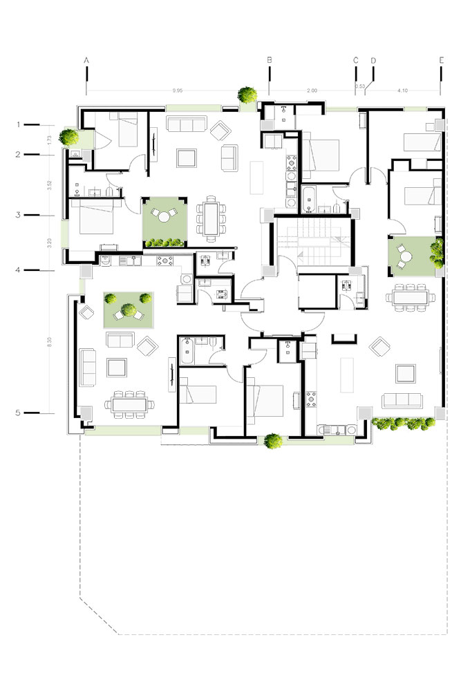
ه- با گسترش فضای سبز به حوزهی میانی (حد فاصل تراز پایه و طبقهی پایانی) حس زندگی را به درون خانهها تزریق کردیم.
و- واحدهای طبقهی پایانی (طبقهی ششم) را با الگوی حیاط مرکزی طراحی کردیم، این حیاطها به عنوان قلب تپندهی خانه، علاوه بر افزایش سبزینگی، نور و آفتاب، محل دورهم جمع شدن خانواده بوده و سهمی از آسمان را بار دیگر به خانههای امروزی هدیه میدهند.
ز- گفتیم این فضای باز باقیمانده که قرار بود نقش حیاط خانه را ایفا کند و ساکنان خانه را درون خود دور هم جمع کند، این نقش بنیادی را در ساختار ضابطهی جرمگذاری از دست داده است. برای احیای این نقش، به بام که از فضای عمومی شهری و دسترسیها در تراز پایه فاصله گرفته و امکان خلق حیاط نیمهعمومی آرام را دارد، پناه بردیم و بام سبز را، شامل فضاهای نشیمن سبز، آلاچیق، فضای بازی کودکان و حوض آب طراحی کردیم.
هفتمین کتاب سال معماری معاصر ایران، 1403
_______________________________________
تیم طراحی معماری: فرهاد باقرزاده چهارجوئی، فرزاد باقرزاده چهارجوئی، سمیرا ترزفان، رویا خزاعینژاد، محسن ملکثابت
مجریان اصلی پروژه: فرهاد باقرزاده چهارجوئی، فرزاد باقرزاده چهارجوئی، مهندس حیدری، مهندس حسنزاده
کارفرما و بهرهبرداران: گروه سرمایهگذاری آرین
تاریخ شروع – پایان ساخت: 1402–1400
سطوح زیربنا و زمین پروژه: زیربنا 3000 متر مربع
زمین: 600 متر مربع
آدرس: بین وکیلآباد 23 و 25.
وبسایت: www.arianprojects.com
ایمیل: arian.engineering.group@gmail.com
اینستاگرام: arian.engineering.group
Residential Building Eleven, Farhad Bagherzadeh Chaharjooei, Farzad Bagherzadeh Chaharjooei

Architectural Design Team: Farhad Bagherzadeh Chaharjooei, Farzad Bagherzadeh Chaharjooei, Samira Tarzfan, Roya Khazaeinejad, Mohsen Malek Sabet
Main Project Executives: Farhad Bagherzadeh Chaharjooei, Farzad Bagherzadeh Chaharjooei, Engineer Heidari, Engineer Hassanzadeh
Client and Stakeholders: Arian Investment Group
Project Start and Completion Years: 2021–2023
Project Area and Land Surface: Built Area: 3,000 m2 – Land: 600 m2
Address: Between Vakil Abad 23 and 25.
Website: www.arianprojects.com
Email: arian.engineering.group@gmail.com
Instagram: arian.engineering.group
The Residential Building No. 11 is part of a series of client projects continuously underway in Mashhad. The construction regulations for urban blocks similar to the approximately 600-square-meter site of this project stipulate a 60% building coverage and a 360% density limit.
The remaining 40% open space on the site, after the building’s mass is placed, typically functions as a transitional area connecting the six-story building to the access route, which 19 families and their guests use to reach their apartments. This open space no longer serves the role of a private courtyard, which in traditional houses was a space for life, family gatherings, connection with nature, and finding tranquility. Instead, it merely becomes the leftover area after the placement of the building mass.
Therefore, the design challenge shifted from focusing on “mass architecture” to focusing on “space architecture.”
The pedestrian access was defined through this courtyard, and by dedicating part of the courtyard to the urban sidewalk (through a setback in its edge), a plaza scaled to match the building itself was created.
By utilizing the sunken garden pattern, the basement was transformed from the dark, low-quality space typical of contemporary buildings into a vibrant, green area suitable for collective activities such as children’s play and ceremonies. Visual and physical connections for pedestrians and vehicles were also added to bring dynamism and movement to the public courtyard.
A green bridge was designed to connect the urban plaza at the entrance to the interior of the building, passing through the sunken garden.
A residential unit on the ground floor was defined, whose quality was diminished due to it’s proximity to the public courtyard and the pedestrian passage near its windows. The solution for this issue was found in defining a private courtyard for the ground-floor unit, separated from the public domain through the sunken garden.
By extending greenery to the middle domain (between the base level and the top floor), the sense of life was infused into the homes.
The top-floor units (sixth floor) were designed with a central courtyard pattern. These courtyards, as the beating heart of the home, not only increase greenery, light, and sunlight but also serve as family gathering hubs, offering a piece of the sky back to modern homes.
The open space that was meant to act as a courtyard and gather the home’s residents lost this fundamental role within the regulatory structure for massing. To restore this role, the design turned to the roof, which is distanced from the public urban spaces and base-level accesses, allowing for the creation of a tranquil semi-public courtyard. The green roof includes green seating areas, pergolas, children’s play areas, and a water pond.
مدارک فنی
































