ساختمان اداری کارخانه تارادیس، اثر فرزانه آقابابایی رضا مرادیمقدم
هفتمین کتاب سال معماری معاصر ایران، 1403



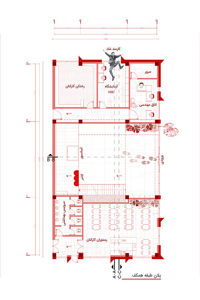
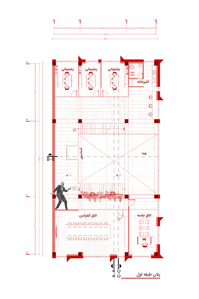
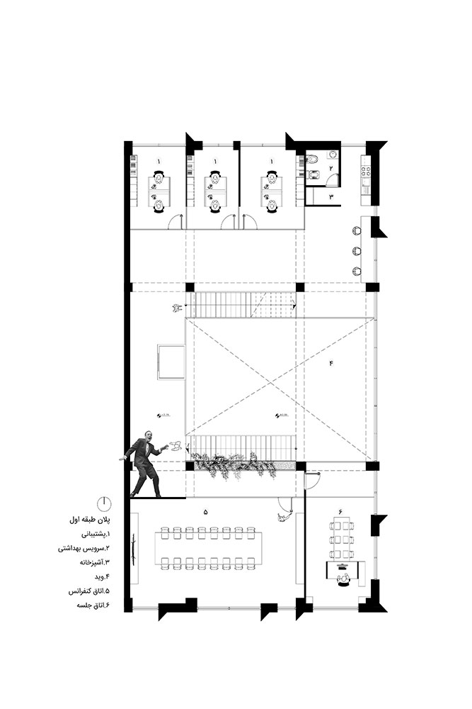
پروژهی ساختمان اداری کارخانهی تارادیس به منظور تامین بستر فضای اداری یک کارخانهی تولید در و پنجره و شیشه انجام شد.
ایده و توسعهی طراحی
انسانها بخش قابل توجهی از عمر خود را در محیط کار سپری میکنند. محیط کار، به خصوص برای کارکنان کارخانهها و شهرکهای صنعتی که ساعات زیادی را در این فضاها میگذرانند، از اهمیت بیشتری برخوردار است. به طور کلی فضای شهرکهای صنعتی در تقابل با فضای شهری فاقد روح، شور و نشاط هستند و لازمهی افزایش کیفیت زندگی افراد و به طور کلی افزایش بهرهوری جامعه، بهبود کیفیت مکان حضور آنها است.
محصولات اصلی کارخانهی تارادیس شامل مصالح ساختمانی (از جمله درب و پنجره و شیشه) است که با در نظر گرفتن اصول پایداری طراحی شدهاند. این محصولات به کاهش مصرف انرژی و ارتقای ملاحظات زیستمحیطی کمک میکنند. آنها با شعار “جزییات، تفاوت را میسازد”، متعهد به افزایش کارایی هستند. این تعهد به جزئیات در طراحی معماری، طراحی داخلی و مبلمانها هم در نظر گرفته شده است. همچنین در طول فرآیند طراحی، از پنجرهها و فضاها برای ایجاد قابهایی به درون و بیرون بهره گرفته شده است. این عناصر، در حالیکه حریم خصوصی را حفظ میکنند، امکان ارتباط، معاشرت و پویایی را فراهم میکنند.
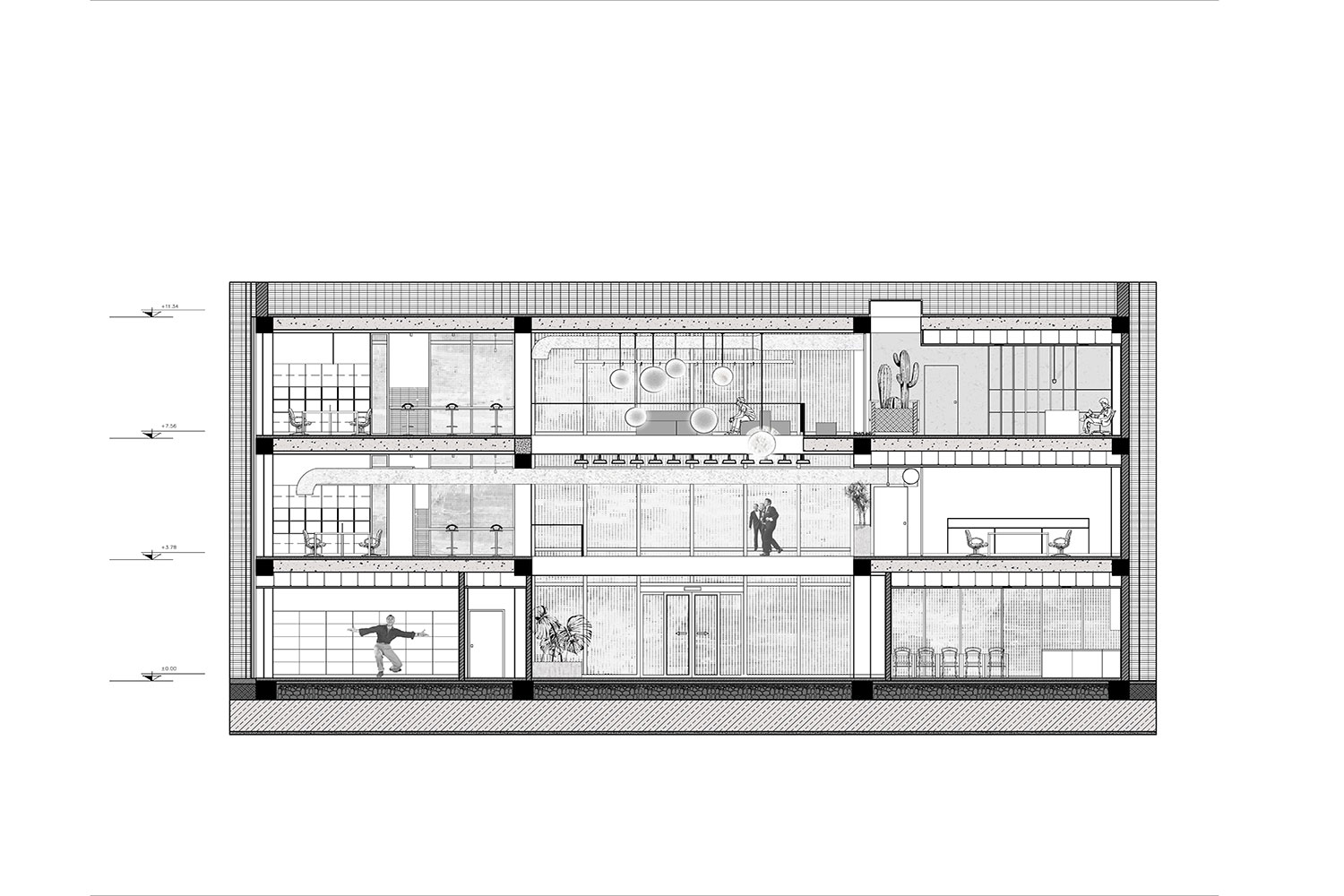
محدودیتهایی نیز در طی فرآیند طراحی مطرح بوده است. این ساختمان با سازهای موجود و از پیش طراحی شده، به مرحلهی طراحی معماری واگذار شد. از طرفی اقلیم گرم و خشک، تابش شدید نور خورشید و باد و گرد و غبارهای شدید شهرک شکوهیه که در 12 کیلومتری استان قم قرار گرفته نیز در فرایند طراحی موثر بوده است. محدودیت بودجه در فرآیند طراحی و ساخت نیز از عوامل مهم در تصمیمگیریها بوده است. با این وجود عناصر طراحی در تمام سطوح با خلاقیتهای ساخت و صرف هزینهی کمتر قابلیت اجرا پیدا کردند.
در نهایت معماری این کارخانه، روایتگر داستانی از افزایش کیفیت زندگی و حضور انسانها در تار و پود صنعت است. فضایی که در آن توجه به جزئیات و قابها در کار و زندگی در جریان است.
معماری معاصر ایران: مسکونی
_______________________________________
نام پروژه: ساختمان اداری کارخانهی تارادیس
عملکرد: اداری
دفتر طراحی: گروه معماری و ساخت دوئت
معماران: فرزانه آقابابایی، رضا مرادیمقدم
طراحی و معماری داخلی: فرزانه آقابابایی، رضا مرادیمقدم
کارفرما: گروه صنعتی تارادیس
اجرا: رضا مرادیمقدم، پیام بابایی، پیمان حسنی، احسان حسنی
گرافیک: نگین همتیان، عطیه قدیان، فاطمه قربانی
مهندس تاسیسات الکتریکی: عادل اروجلو
مهندس تاسیسات مکانیکی: محمد اسماعیلی، محمد حیدری
مهندس سازه: عبدالخالق موسوی
نوع سازه: بتنی
آدرس پروژه: 12 کیلومتری اتوبان تهران قم، شهرک صنعتی شکوهیه، فاز دوم، میدان شهید بابایی، خیابان صیاد شیرازی
مساحت زمین: 11000 متر مربع / زیربنا: 1200 متر مربع
تاریخ شروع – پایان ساخت: 1402-1400
عکاس پروژه: دید استودیو.
وبسایت: deedstudio.com
ایمیل: info@deedstudio.com
اینستاگرام: deedstudio / duet.group
Office Building Of Taradis Factory, Farzaneh Aghababaie, Reza Moradi Moghaddam

Project Name: Office Building Of Taradis Factory
Function: official
Office: Duet Group
Lead Architects: Farzaneh Aghababaie, Reza Moradi Moghaddam
Interior Design: Farzaneh Aghababaie, Reza Moradi Moghaddam
Client: Taradis Industrial Group
Executive Engineer: Reza Moradi Moghaddam, Payam Babaie, Peyman Hasani, Ehsan Hasani
Graphic: Negin Hematian, Atieh Ghadian, Fatemeh Ghorbani
Electrical Engineer: Adel Orojlou
Mechanical Engineer: Mohammad Esmaieli, Mohammad Heydari
Structural Engineer: AbdolKhalegh Mousavi
Structure: concrete
Location: Shokouhiyeh Industrial zone, 12 km to Qom city, Iran.
Total Land Area: 11000 m2
Area of Construction: 1200 m2
Date 2021-2023
Photographer: Deed Studio.
Website: deedstudio.com
Email: info@deedstudio.com
Instagram: deedstudio / duet.group
Humans dedicate a significant portion of their lives to workspaces, a reality particularly evident for factory and industrial zone employees who invest a substantial amount of their time within these environments. The quality of the workspace and living environment profoundly impacts an individual’s overall well-being. Traditionally, industrial zones have presented a stark contrast to urban spaces, often lacking the vibrancy and dynamism associated with city life. Enhancing the quality of these industrial environments is paramount for improving both individual well-being and societal productivity.
Taradis Factory stands as a beacon of innovation, redefining the industrial workspace. The factory’s primary focus on producing sustainable building materials, including doors and windows and glass, contributes to reduced energy consumption, increased efficiency, and environmental stewardship. Guided by the company’s ethos, “Details Make the Difference,” Taradis is committed to creating dynamic, inspiring, and efficient workspaces that not only boost productivity but also nourish the human spirit. The factory’s interior design, meticulously curated with a focus on functionality and aesthetics, transforms the workplace into an inviting and stimulating environment that enhances employee’s overall quality of life.
This unwavering dedication to detail, aligned with Taradis Factory’s core values, ensures that every aspect of the facility contributes to a positive and fulfilling work experience. The strategic placement of windows and the creation of internal and external frames foster interaction, collaboration, and a sense of connection among employees, while maintaining privacy.
The design process was met with unique challenges. Working within the constraints of an existing structure limited the scope for structural modifications, significantly impacting the design and construction phases. Additionally, the hot and dry climate of Shokouhiyeh Industrial zone that located from 12 km to Qom city, Iran, characterized by intense strong winds, and dust storms, presented substantial obstacles. To mitigate these challenges, the factory incorporates sun shading elements to reduce solar heat gain. Careful consideration was given to window placement and design to address the region’s wind and dust conditions. The selection of heating, ventilation, and air conditioning systems was optimized for energy efficiency while ensuring optimal comfort conditions for employees.
Budgetary constraints were another critical factor influencing design decisions. However, prioritizing spatial quality, comfort, and tranquility, the design team creatively employed cost-effective solutions without compromising aesthetic appeal or functionality.
Ultimately, Taradis Factory embodies a vision of the workplace as more than just a place to work. It is a space where individuals can thrive, where creativity and innovation flourish, and where the human spirit is enriched. By prioritizing employee well-being and sustainability, the factory sets a new standard for industrial workplaces, serving as a testament to the transformative power of thoughtful design and a commitment to human-centered values.
The factory’s architecture stands as a testament to the belief that workspaces can be more than just places of employment. It is a space where individuals can thrive, where creativity and innovation flourish, and where the human spirit is nurtured and invigorated, positively impacting both individual lives and society as a whole. Taradis Factory serves as a model for other industrial workplaces, demonstrating that by prioritizing employee well-being, sustainability, and thoughtful design, it is possible to create spaces that not only enhance productivity but also enrich the human experience.































































