آرامگاه نادرشاه افشار و مجموعهی فرهنگی نادری اثر هوشنگ سیحون
مشهد، خراسان، 1340-1335
Mausoleum of Nader Shah Afshar and the Naderi Cultural Complex, designed by Houshang Seyhoun
Mashhad, Khorasan, 1956–1961

عکاس: داوود وکیلزاده
ایل افشار را شاه عباس به ناحیهی کبکان (یا کوبکان) کوچ داده بود تا در مقابل حملههای ازبکان مقاومت کنند. یکی از افراد این ایل، امامقلی نام داشت که پوستیندوز بود. او در روز 28 محرم سال 1100 هجری قمری در دره ی گز، صاحب فرزندی شد که او را به نام جدش، نادر قلی یا ندر قلی نام نهاد که بعدها به تهماسبقلی معروف شد و پس از افتوخیزهای فراوان و نبردهای متعدد، نادرشاه افشار، شهریار قدرتمند ایران شد. آوازهی جهانگشاییها و دلاوریهای نادر زبانزد است. نادرشاه در ماه صفر 1151 هجری قمری به هندوستان لشکرکشی کرد و پس از نبردی سخت، در 1152 هجری قمری با غنائم فراوان به مملکت بازگشت و کاخی برای خویش در ناحیهی کلات بنا کرد. او در جنگ داغستان که یکسال و نیم به طول انجامید و تلفات فراوان به همراه داشت، پسر خود، رضاقلـی میرزا را از دو چشم کور کرد. خشونت و سختگیریهای نادر در اواخر عمر او که صورتی به غایت ناعادلانه گرفته بود، بهانهی قیام علیه وی را به دست مخالفان داد و در یکی از شبهایی که نادر به همراه لشکریانش به قصد سرکوبی شورشیان، عازم خبوشان بود و در فتحآباد خیمه زده بود، در نیمهشب یکشنبه 12 جمادیالثانی 1160 هجری قمری در خیمه و به دست چند تن از امیران افشاریه و قاجاریه به قتل رسید. شیخ محمدعلی حزین لاهیجی در تاریخ خود که درباره ی اوضاع ایران در اواخر دوره ی صفویه، فتنه ی محمود و سلطنت نادرشاه فراهم آورده، چنین نوشته است:
نادرشاه به تعمیر و تزئین عمارت و روضه ی منوره ی رضویه علی ساکنها النحیه پرداخته بعضی از ابنیه ی عالیه ی آن صحن مقدس را سراپا به خشت های طلا تزئین نمود و نهر آبی از کوهپایه ی آن دیار آورده بر نهر خیابان که از صحن آن روضه می گذرد افزود و در آن شهر مقبره ی عالیه جهت خود عمارت نموده انجام داد بعد از اتمام بر دیوار آن بقعه این بیت نوشته دیدند:
در هیچ پرده نیست که نباشد نوای تو عالم پر از تو و خالیست جای تو
پس از فاجعهی قتل، سر و تن نادر را به مشهد انتقال دادند و در همان مقبرهای که خودش سالها پیش در خیابان بالا ساخته بود، به خاک سپردند. بنای این آرامگاه عبارت بود از یک ایوان در جلو و دو اتاق کوچک و راهرو در طرفین آن. محل آرامگاه در وسط بنا و دو اتاق در شرق و دو اتاق در غرب آن، و یک اتاق نسبتا بزرگ در پشت محل آرامگاه با دو راهروی کوچک در طرفین آن. آرامگاه با وسعت 545 مترمربع در وسط باغ قرار داشت، با ساختمانی به طول 26 متر، عرض 22 متر و ارتفاع 6 متر از کف. گلخانهای هم در زاویهی شمالشرقی باغ بود و یک آبانبار مخروبه در ضلع شرقی. دیوار پیرامون باغ تا ارتفاع 2/1 متر از آجر و پس از آن تا ارتفاع 75/1 متر از خشت خام ساخته شده بود. این بنا در دورههای بعد بهتدریج در پی ناآرامیها، آشوبهای سیاسی و بیتوجهیها ویران شد. به سال 1296 خورشیدی هنگامی که احمد قوام (قوام السلطنه) والی خراسان بود، جمعی از اعضاء کمیته ی حزب دموکرات خراسان که علاقه مند به بزرگداشت نادرشاه افشار بودند بر اثر مشاهده ی وضع محل آرامگاه آن شهریار که محل گاری خانه و درشکه خانه شده بود همت کرده با کوشش های قابل ستایش، گاری خانه ی مزبور و خانه های متصل و مجاور آن که به طور کلی در تصرف و اختیار متنفذین وقت بود را برای احداث باغ نادری و بنای آرامگاه مجدد نادرشاه خراب کرده و به فراخور امکانات موجود آن زمان، بنایی احداث کردند. این بنای جدید هم در معرض آسیب و خرابی قرار گرفت تا آنکه انجمن آثار ملی ایران در اسفندماه 1333 در صدد بر آمد آرامگاهی مناسب شأن نادرشاه برای وی در همان محل مقبرهی ساختهشده توسط قوامالسلطنه احداث کند.

حوضچه با سنگ آب از جنس سنگ خارا.
عکاس: حسین برازنده.
در اسفندماه 1333 آقای رام، استاندار خراسان، نامهای به مقامات حکومتی نوشته و در آن یادآور شد که مقامات در سفرهای خود به آن استان در فکر تجدید بنای مقبرهی نادر بوده و انجمن آثار ملی آن استان برای اجرای پروژه به بودجهای در حدود دو میلیون ریال نیاز دارد. مقامات با اجرای طرح موافقت کرده و اعلام کردند تا هرگونه اقدام و مساعدت لازم از سوی انجمن، فراهم گردد. در 18 اسفندماه 1333 طرح نقشهی ساختمان آرامگاه و مجسمهی نادرشاه افشار توسط انجمن آثار ملی استان خراسان از طریق روزنامهی “آفتاب شرق” به شمارهی 4602 منتشره در آن شهرستان، به مسابقه گذاشته شد و موعد ارسال طرحها، آخر خرداد 1334 تعیین گردید. ولی در تاریخ 27 فروردین 1334 انجمن آثار ملی در نامهای به استاندار خراسان، به دلیل جلوگیری از اصطکاک فعالیتهای مختلف و تا حصول نتیجهی مناسب توسط انجمن در تهران، خواستار جلوگیری از هرگونه اقدام دیگری در این مورد شد. در مرداد 1334 از طرف انجمن به هوشنگ سیحون و ابوالحس صدیقی نوشته شد که در پی مذاکرات حضوری با هیئتمدیرهی انجمن آثار ملی، آن دو نفر دربارهی طرح نقشهی آرامگاه نادرشاه افشار و تهیهی مجسمهی مناسب آن شهریار اقدام کنند و نقشه و طرحی سزاوار آن آرامگاه تهیه کنند. انجمن اینبار بدون برگزاری مسابقه، طرح هوشنگ سیحون را برای بنای آرامگاه و متعلقات آن (شامل ساختمان موزه، کتابخانه، منزل متصدی مجموعه و طراحی باغ پیرامون) و طرح ابوالحسن صدیقی را برای مجسمه پذیرفت. طرح پیشنهادی سیحون به دانشکدهی هنرهای زیبا ارسال و در 20 آبان 1334 مورد تأیید محسن فروغی –رییس وقت دانشکده- قرار گرفت و قرارداد اجرا میان انجمن و شرکت کا.ژ.ت (پیمانکار) در 22 مهر 1335 در جلسه ای که به دعوت هیئت مدیره ی انجمن با حضور محسن فروغی، ابوالحسن صدیقی، هوشنگ سیحون و عبدالعزیز فرمانفرمائیان تشکیل شده بود، منعقد شد. در قرارداد فوق مقرر شد تا طبق شرایط پذیرفتهشده کلیهی عملیات ساختمانی و تأسیساتی، ساختمانهای فرعی، تسطیح و حصارکشی محوطه در 24 ماه از تاریخ امضاء قرارداد به پایان رسیده و تحویل داده شود. هزینهی کل بنای آرامگاه، پایهی مجسمه و امور مربوط به محوطه جمعا بالغ بر 24,230,000 ریال برآورد شد. هوشنگ سیحون و حسین جودت گزارش خود از مطالعهی زمین آرامگاه را در بهمنماه 1335 به انجمن ارائه دادند. در مطالعات چنین مشخص و گزارش شد که: «سستی خاک تا پنجمتری مشکلساز است و اجراکاران را متحمل هزینههای افزون بر مبلغ پیشبینیشده خواهد کرد. میخکوبی بتنی تا قشر مقاوم زمین و تعبیهی دو صفحهی بتنآرمه –یکی در سرتاسر بنا و دیگری در زیر برج- در عمق پنجمتری برای کار لازم دیده میشود، در حالی که پیهای بنای اصلی و پایههای برج، از روی همین صفحهها شروع شده و تا سطح همکف، با قشرهای خاک کوبیدهی آبپاشیشده پر میشوند. برای جلوگیری از نشست زمین نیز زیر فرش کف، قشری از بتن فراهم میآید و اطراف بنا به منظور ممانعت از آسیبهای رطوبتی، زهکشی خواهد شد.»
همان طور که گفته شد، در ابتدا هزینهی کار 24,230,000 ریال برآورد شد اما در پی ملاحظات تازهی مهندسین و توصیهی آنها برای احتراز از تجربهی آرامگاه فردوسی (که به موجب سهلانگاریها دچار تخریب شده بود) مقدار آن تغییر کرد و بالغ بر5,766,600 ریال بر هزینه ی فوق افزوده شد که یک میلیون ریال آن از طریق صرفهجوییهای دیگر در بنا قابل تأمین بود. پس در قرارداد شرکت مقاطعهکار، فقط 4,766,600 ریال به هزینهی سابق افزوده شد و هزینهی نهایی را به 28,996,600 ریال رساند.

نمای کلی موزهی اصلی، واقع در سمت جنوبی آرامگاه.
عکاس: حسین برازنده.
انجمن در تاریخ 20 آبان 1335 قراردادی حاوی 9 ماده با هوشنگ سیحون امضا کرد که در آن سیحون متعهد شد تا نقشههای بنای آرامگاه -که شامل بنای اصلی و پایهی مجسمه میشد- و همچنین طرحهای مربوط به محوطه و بناهای فرعی را طبق برنامه تا پنج ماه (از تاریخ امضای قرارداد) تحویل دهد. براساس این قرارداد کلیهی محاسبات فنی -مربوط به استقامت بنا- به انضمام نقشههای تفضیلی، پوشش فلزی، بتن مسلح و همچنین تهیهی نقشههای تأسیسات آب و برق و بهداشت و مسئولیت نظارت در اجرای کارهای آرامگاه را به نمایندگی از طرف انجمن با احتساب 5 درصد کل هزینههای ساختمان به عنوان حقالزحمه به سیحون محول شد و شرکت مقاطعهکار کا.ژ.ت در تاریخ 11 آذر 1335 به منظور آغاز عملیات اجرایی، اقدام به تخریب بنای قبلی آرامگاه نادرشاه افشار کرد. موضوع حائز اهمیت دیگر، انتخاب یک معدن سنگ مناسب برای استخراج مصالح لازم بود. برای این منظور، از معدنهای کوهسنگی، وکیلآباد و تپهسلام بازدید شد و از بین آنها، سنگ گرانیت معدن کوهسنگی ضمن برش، تراش و نمونهبرداری، بهتر از بقیه تشخیص داده شد. استخراج و حمل سنگ تا محل اجرا توسط یدک کش های لشگر خراسان طی 15 روز به انجام رسید. سیحون حتا مصالح ساختههای خویش را منطبق با خصوصیت شخصیتی و زندگی هریک از بزرگان انتخاب میکرد و در مورد بنای آرامگاه نادرشاه افشار می گوید: «مادهی اصلی ساختمان از سنگ خارای منطقهی کوهسنگی در مشهد، مشهور به سنگ “هرکاره” است که یکی از مقاومترین سنگهای موجود در ایران است. دلیل این انتخاب، اشاره به صلابت و عظمت نادرشاه افشار است».
آرامگاه کنونی نادرشاه واقع در ضلع شمالغربی چهارراه شهدا (نادرى سابق) قرار دارد که پس از حرم حضرت امام رضا (ع) مهمترین موضع توریستی-تاریخى شهر مشهد تلقى میشود، به انضمام یک باغ که آرامگاه محمدتقیخان پسیان (سردار خراسانی) در زمینی چمنپوش در گوشهی شمالی آن قرار دارد. به دلیل کندن پِی و خاکبرداری در محل آرامگاه نادر، لازم بود تا برای انتقال موقت استخوانها دو قبر فراهم گردد؛ یکی برای نادر و دیگری برای کلنل میرزا تقیخان پسیان، و هر دو در صندوقهایی مجزا گذاشته شدند. پس از آنکه ساختمان آرامگاه نادر به پایان رسید، در ساعت شش عصر روز پنجشنبه 28 مردادماه 1338 در حضور تیمسار سپهبد فرجاللّه آقاولی (رییس وقت انجمن) و تعدادی دیگر از افراد صاحبمنصب و سرشناس، صندوقها گشوده و محتوای آنها پس از خواندن نماز میت و اجرای مراسم مذهبی، در محل قبر گذاشته و روی آنها پوشانده شد. در مورد محل استخوانهای نادر، رفع یک اشتباه در اسناد تاریخی بسیار لازم مینماید. دانشمند فقید، عباس اقبال آشتیانی، به نوشتهی فارسنامهی ناصری (تألیف مرحوم حاج میرزا حسن شیرازی) استناد جسته که بیان می کند، ضمن وقایع سال 1210 هجری قمری، آقا محمد خان قاجار بعد از به سلطنت رسیدن، دستور شکافتن قبر نادرشاه که در جوار حرم امام رضا (ع) بوده را داده، پس استخوانهای او را زیر پلههای کاخ کلستان و در کنار استخوانهای کریمخان زند دفن کردند و چند سال بعد، به دستور فتحلیشاه قاجار، آن استخوانها را به نجف اشرف انتقال داده و در آنجا به خاک سپردند.

واحد اداری با طراحی متناسب با آرامگاه.
عکاس: حسین برازنده.
ولی با مطالعهی وقایع دوران حکومت پهلوی اول، ملاحظه میشود که شادروان ضیاء الواعظین شیرازی در یکی از روزهای نیمهی دوم سال 1304 به اتفاق چند تن از بازماندگان خاندان زند، طی مراسمی که در خلوت کریمخانی کاخ گلستان صورت گرفته بود، به حضور رضاشاه رسیده و شمشیری از یادگارهای شهریار زند را به وی اهدا کرد. در همان زمان، محل دفن کریمخان زند را در حضور نامبردگان شکافته و استخوانهای وی را تحویل بازماندگان دادند تا به ملایر برده و در آنجا به خاک سپرده شود. بنابراین دفن استخوانهای کریمخان در نجف اشرف صحت ندارد، چون اگر نوشتهی فارسنامه صحیح بود، استخوانهای کریمخان زند در زیر پلهها پیدا نمیشد. همچنین بر اساس مدارک موجود، انتقال استخوانهای نادر به تهران توسط آقا محمدخان قاجار هم نمیتواند صحیح باشد. از طرفی در فروردین 1336، هنگامی که آقای مصطفوی (عضو هیئت مؤسسین انجمن) با حضور چند تن از اعضاء انجمن اثار ملی خراسان به منظور باز کردن قبر و خارجکردن استخوانهای نادر در محل مقبرهی نادرشاه افشار حضور یافتند، مشاهده شد که استخوانهای نادر در محل خود و به وضعی که از ابتدا دفن شده بود، موجود بوده، ضمن آنکه جمجمهی وی فاقد فک پایینی بود و بر بالا و پهلوی سر وی آثار ضربهی تبر (به شرحی که در واقعهی قتل او در مستندات تاریخی ذکر شده) نمایان بود. یک جمجمهی جداگانه هم داخل کوزهی سفالی به مسافت حدود سی سانتیمتری آن دفن شده بود که آن نیز عینا محفوظ نگه داشته شد. مدرک دیگر، در نقاشی فتح هندوستان بر دیوار شرقی تالار چهلستون اصفهان است که نادرشاه را در صحنهی جنگ کرنال نشان میدهد. در پایین آن نقاشی این دو بیت بهوضوح و با خطی درشت نوشته شده است:
به حسبالحکم شاهنشاه دوران فریدون فر محمدخان قاجار
ز کــلـک صـادق نـقاش نـو شـد نشـان و نام نـادرشاه افـشار
این مورد نشان میدهد که صادق خان، نقاش معروف در دوران آقا محمدخان و فتحلیشاه قاجار، نقاشی مزبور را به دستور آقا محمدخان کشیده و به احتمال قویتر آن را بازسازی کرده، در صورتی که اگر آقا محمدخان حس بیاحترامی نسبت به نادر شاه داشت، هرگز این عمل میسر نمی شد. زمین باغ آرامگاه، اعم از فضای باغ یا زیر ابنیهی آرامگاه 14,407 مترمربع میباشد، زیربنای اصلی آرامگاه 1200 مترمربع است که به همراه مجسمه 1307 مترمربع میباشند. در حالی که سایر فضاها همچون پذیرایی، نگهبانی، تأسیسات و گلخانه 378 مترمربع را اشغال کردهاند. باغ پیرامون از چهار طرف، معبر عمومی میباشد و دیوار آن، به عرض 70 و ارتفاع 50 سانتیمتر، از سنگ گرانیت با تلفیق نردههای آهنین به نقش تبرزین ساخته شده است. آرامگاه و بنای یادبود شامل سکویى با دوازده پله، مقبره، پوشش خیمهمانند بر روى مقبره و سکوی مرتفعی در مجاورت آن، برج مرتفع برای برپاکردن مجموعهی مجسمهی نادرشاه سوار بر اسب و قزلباشهای همراه او (که اشاره به سپاهیان نادر دارد)، یک غرفهی فروش کتاب و دو تالار براى موزهی حاوی اسلحههای جنگی است. ساختمان آرامگاه با تکیه بر دو شکل هندسی مربع و مثلث، طراحی و برای این پروژه، سنگ تراشی به نام پوترو گروویچ از یوگسلاوی استخدام شد. در ساخت تمام قسمتهای ساختمان، از جمله نما، دیوارها و ستونها از تختهسنگهای عظیم گرانیت کوهسنگی استفاده و سقف مثلثیشکل آن نیز از بتن آرمه ساخته شد، ضمن آنکه تمام پوشش بنا از بتن مسلح نمایان است و پوشش و زینت دیوارهای داخلی از سنگ تراورتن میباشد. بنای اصلی آرامگاه دارای سه ایوان شرقی، جنوبی و غربی متصل به یکدیگر و سه راهرو و پله است. دو ایوان رو به دو خیابان مجاور هستند و دیگری مقابل برج مجسمه واقع شده. ایوانها به عرض 5/3 تا 6 متر و ارتفاع (از کف باغ) 83/1 متر هستند. در قسمت نمای ورودی، در سمت چپ، موزهی بزرگ و سمت راست، پایهی برجمانند مجسمهها قرار دارد که یک قرنیز سنگی عظیم ضمن پوشش ورودی اصلی، این دو را به هم متصل میکند. برج پایه و مجموعهی مجسمهها به گونهای طراحی شدهاند که حالت یورش را تداعی میکنند. ابتکار این قرنیز در این است که در پوشش بین دو ستون با تکنیکِ سادهشده و مدرن طاقهای رومی اجرا شده است. در این تکنیک، آجر، سنگ کلیدی یا تاجی که بالای قوس تعبیه میشد و فشارهای طاق، از اطراف آن به دو طرف، یعنی پایهها منتقل میشدند؛ به یک قطعه سنگ مثلثی و بقیه به دو قطعه سنگ در طرفین آن خلاصه میشوند و طاق قوسی تبدیل به طاق مستقیم و تراز میگردد. در این مجموعه کلیهی مثلثهای کلیدی، متساویالاضلاع و بقیه، قائمالزاویه هستند که در بالا به صورت مورب برش خوردهاند. همین شیوه عیناً در داخل تالار آرامگاه نیز اعمال شده است.
جزئیات نمای جنوبی و پلکان سنگی ورودی موزه.
عکاس: حسین برازنده
ورودی موزه ی اصلی.
عکاس: حسین برازنده
نمای مجموعه در حدفاصل بین مجسمه و موزهی کوچک، طوری ساخته شده که –بهخصوص در نمای اصلی- فاقد هرگونه برجستگی است؛ یعنی ابزارکاریها و تراش سنگها تماما از داخل میباشد که این کار به منظور ایجاد قدرت تجسمی و تصویری بیشتر صورت گرفته است. تنها در قسمت موزهی کوچک، سه ناودان عظیم سنگی مشاهده میشود که از متن، بیرون آمدهاند. این اقدام بیشتر جنبهی زیبایی دارد. کل بنا روی سکویی به ارتفاع 2 متر از سطح زمین استقرار یافته است. تالار آرامگاه نیز اتاقی به شکل مربع است که از دو طرف با دیوارهای سنگی محکمی به رنگ قرمز و ستونبندیها محصور شده است. در تالار آرامگاه یک پوشش مربع شکل بزرگ با تراش های مثلثی از داخل و بیرون و مرتفع تر از قسمت های دیگر، طوری ساخته شده که چهار مثلث بزرگ مشرف به ستون های هشتگانه ی داخل تالار با نقش هندسی مخصوص از سنگ های مرمر نازک یزد، نور زرد ملایمی را به داخل آرامگاه هدایت می کند. به طور کلی، بنا دارای چهار قسمت است: اول، تالاری به ابعاد 5/15 × 4/8 متر با هفت پنجرهی بزرگ به سمت جنوب و خیابان نادری؛ دوم، فضای اصلی مقبره به ابعاد 15 × 15 متر که دو طرف آن به عرض تقریبی 4 و ارتفاع آن 5/2 متر میباشد، شانزده ستون یکپارچهی سنگی به ارتفاع 26/2 متر آن را محصور کردهاند و سقف مقبره بیش از 6 متر ارتفاع دارد و دیوارهای اطراف آن از مرمر قرمزرنگ ساخته شده که قبر نادر در گوشهای در همینجا قرار دارد؛ سوم، برجی در شمالشرقی بناست که با دو ستون سنگی یکپارچه به ارتفاع 09/4 متر به بنای اصلی متصل است. ارتفاع برج 5/12 متر و طول و عرض پایین آن 5/9 × 5/5 متر است که در بالا به طول و عرض متوسط 8/4 تبدیل میشود. مجسمهی نادرشاه سوار بر اسب در حال حمله در بالای برج، و مجسمهی سه سرباز قزلباش در قسمت دیگری از بدنهی برج (که از بالای برج، دو متر پایینتر است) قرار دارد؛ چهارم، ساختمان موزه است که با ابعاد 7 × 7 متر، در طرف شمالغربی مقبره قرار دارد. بدنه ی داخلی تالار بزرگ و موزه از سنگ تراورتن سفید می باشد و در زیر ایوان غربی متصل به آرامگاه، دو دستگاه سرویس بهداشتی ساخته شده است. سنگ مزار نادرشاه در گوشهی این تالار مربعشکل و بین دو دیوار، در وضعیت رو به بیرون قرار گرفته است. سنگ قبر به صورت یک منشور ناقص است که هریک از اضلاع آن در پایین تقریبا 2 و در بالا 5/1 متر است و یک صفحهی برنجی برجسته روی آن قرار گرفته که روی آن چنین درج شده است: «آرامگاه شهریار توانای ایران، که در محرم یکهزار و صد هجری تولد یافت و در جمادیالآخر یکهزار و صد و شصد هجری درگذشت.»
به جای دو دیوار دیگر، ستون گذاشته شده است؛ زاویهی مقبره، پناه و بازبـودن آن، دیوارها، ستونها، رنگ قرمز و برجستگیهایی با ابعاد متفاوت که از دیوار سنگی بیرون آمدهاند، همگی در این فضا تداعیکنندهی جنگهای متعدد نادرشاه هستند. ستونهای اطراف تالار اصلی از نقشهی مربعهای قاعده و بالای ستون با 45 درجه چرخش نسبت به هم طراحی شده که به این ترتیب، 8 مثلث با 4 قاعده در بالا و 4 قاعده در پایین حاصل شده است: نشانهای از کلاه سربازان نادرشاه (البته هوشنگ سیحون در کتاب معماری معاصر ایران ایده ی طراحی ستون ها را به کلاه شخص نادر ارجاع داده است). 16 عدد از آنها 26/2 متر ارتفاع و دوتای دیگر بیش از 4 متر ارتفاع دارند که از سنگ خارای یکپارچه تراشیده شدهاند. آرامگاه، سه ایوان شرقی، غربی و جنوبیِ متصل به یکدیگر و سه راهرو و پله دارد.
فضای داخلی و مقبره ی نادر. سقف بتنی بالای مقبره شبیه به سقف سیاه چادرها طراحی شده و اشاره به زندگی پرماجرای نادر شاه دارد که بیشتر در جنگ و زیر چادر سپری شده بود.
عکاس: حسین برازنده
دیوار موزه ی کوچک در ضلع شمالی مجموعه.
عکاس: شهریار خانیزاد
موزههای جنگ در ارتفاع دومتری از سطح زمین ساخته شدهاند و محتوایی به این قرار دارند: یکی متعلق به تجهیزات جنگی دورهی نادرشاه و ادوار مختلف است که در آن انواع سلاحهای دورهی افشاریه، تابلوهای نقاشی از نادر و صحنههای جنگ، وسایل سوارکاری مانند زین و برگ اسب از دورهی افشاریه تا قاجاریه، چند نسخهی خطی از جمله تاریخ جهانگشای نادری و دو شمشیر متعلق به نادر نگهداری میشود. روی یکی از شمشیرها عبارت “السلطان نادر” حک شده و روی دیگری، این بیت شعر طلاکوب شده است:
شاه شاهان نادر صاحبقران گشت سلطان سلاطین جهان
این شمشیر در دشت مغان به سال 1148 هجری و در روز تاج گذاری نادر از طرف ملت ایران به وی اهدا شد. موزهی دوم، در سال 1373 به مجموعه اضافه شد و در آن انواع سکه، ظروف و دیگر اشیای مربوط به دورهی صفویه تا معاصر موجود است. درهای فلزی داخل برای موزهها و فضای زیر برج و همچنین نردههای دورتادور باغ، شکل تبرزین نادر را تداعی میکنند. در طراحی باغچههای اطراف مقبره نیز از اشکال هندسی اصلی مربع و مثلث استفاده شده است. حوضها و آبریزهای اطراف آرامگاه همگی بر اساس الگوی طراحی باغهای ایرانی ساخته شدهاند و در گوشهای از باغ نیز بناهای فرعی مانند سالن اجتماعات، کتابخانه و گل خانه ساخته شده که در هماهنگی کامل با بنای اصلی هستند. در فضای باغ، چهار حوض آب در سه زاویهی بنای اصلی –یکی به عرض و طول 5/12 متر، دیگری به شکل مثلث و به قاعده و ارتفاع 6 متر، سومی که مقابل عمارت فرعی است، به ابعاد 8 × 5/4 متر و چهارمی حوضی کوچک است که در پشت بنای فرعی قرار دارد. تمام حوضها در حدود یک متر عمق دارند؛ سه حوض اول، به وسیلهی جویهای سرباز آب –که تماما با سنگ و سیمان ساخته شدهاند- به یکدیگر مربوط هستند. بقیهی فضا شامل خیابانکشی و باغچهبندی چمن با جدولهای سنگی است. ساختمان فرعی که تقریبا 200 مترمربع مساحت دارد، مرکب از سه اتاق است که دو اتاق آن به طول و عرض 5/4 متر و سومی به ابعاد 5/6 × 10متر میباشد که دارای دستشویی و دو راهرو و دوش و آبدارخانه هم دارد و در نزدیکی آن موتور خانه قرار دارد که با ابعاد 5 × 8 متر در زیر زمین است؛ در نزدیکی آن نیز گلخانه قرار دارد و در طرف دیگر بنا چاه نیمهعمیقی برای تأمین آب آرامگاه تعبیه شده است. در سمت چپ نمای ورودی و در نزدیکی موزهی بزرگ، یک حوضچه با سنگآب از جنس سنگ خارا است که سنگآب آن از بالا شکل یک مثلث متساویالاضلاع را دارد و از نماهای جانبی میبینیم که شش مثلث بزرگ و کوچک، یک در میان، حجم آن را به وجود آوردهاند. از دیگر قسمتهای برجستهی بنا میتوان به مجسمهی نادرشاه اشاره کرد که بر پایهی بلندی قرار گرفته و او را سوار بر اسب به همراه چند تن از سربازان قزلباش سپاهش به تصویر میکشد. اصولا در طراحی آرامگاه نادرشاه افشار به این مطلب توجه شده که مجسمهی سوارهی نادر و سربازان او بر فراز پایهای متصل به آرامگاه و با ارتفاع درخور وی نصب شود، ضمن آنکه روحیهی آن شهریار، که سراپا تصمیم و قدرت توأم با سادگی و بیپیرایگی بوده، لحاظ گردد. به همین جهت با پیروی از نکات مناسبی از معماریهای تاریخی ایران و الهام از مسجد تاریخانهی دامغان، بنای استواری از سنگهای تراشخورده و بزرگ گرانیت خراسان ساخته شد که تمام نمای خارجی آن از تختهسنگهای عظیم گرانیتی موجود در کوهسنگی مشهد و ستونهای یکپارچه از همان سنگ می باشد. پوشش و تزئین داخل بنا هم از سنگ تراورتن تهیه شد تا گویای صلابت و سادگی آن شاه افشاری باشد. چنانکه ذکر شد، همزمان با تعیین طرح مقبره، طرح مجسمهی نادرشاه نیز به استاد ابوالحسن صدیقی سفارش داده شد. طبق گزارش انجمن، صدیقی موظف شد مجسمهی نادرشاه سوار بر اسب را در محل مشخصشده در طرح هوشنگ سیحون، نصب کند و در آبان ماه سال 1335 خورشیدی، استاد ابوالحسن صدیقی متعهد میشود تا مجسمهی گچی نادر را آماده کند. برای ساخت مجسمهی برنزی، صدیقی به کشور ایتالیا سفر کرده و در هفتم اسفندماه 1335 طی نامهای به اطلاع انجمن میرساند که سه مؤسسه در فلورانس، ناپل و رم آمادگی خود را برای ساخت مجسمهی نادرشاه اعلام کردهاند که از میان آنها مؤسسهی برونی (Bruni) در رم، ضمن داشتن تجهیزات بهتر و تقبل هزینهی کمتر، اصلح شناخته شد، در 4 اردیبهشت 1337 میان انجمن آثار ملی ایران و کارخانهی ریختهگری برونی قراردادی در هفت ماده منعقد شد و کار به آن موسسه واگذار گردید. همچنین موسسهی برونی برای کمک در نصب مجسمه در محل، متخصصی را به مشهد اعزام کرد.
نمای جنوبی
عکاس: داوود وکیلزاده
ورودی به موزهی کوچک از سمت جنوب محوطه.
عکاس: داوود وکیلزاده
سنگ تراشی آرامگاه نادر
بخش اداری و مدیریت مجموعه و همچنین نرده های باغ موزه ی نادری که شبیه به تبرزین طراحی شده است.
تعهدات کارخانهی برونی عبارت بود از بزرگکردن ماکتها، گرتهبرداری و برنز ریزی مجسمهی سوارهی نادرشاه به همراه سربازان، آن هم بر اساس نمونهای که استاد صدیقی طراحی کرده بود. مجسمهی سواره به ارتفاع پنج متر (از پایهی مجسمه تا نوک سر سوار) بود و قاعدهی آن ابعادی معادل 5/2 × 4 متر داشت (ارتفاع مجسمه بر اساس خیزش اسب بر روی دو پا محاسبه شده بود). همچنین سه مجسمهی دیگر به ارتفاع سه متر با قاعده و جدار اتصالی آنها –یک نیمتنهی برجسته به ابعاد 30/1 × 83/1 متر- به انضمام دو قسمت فرعی عبارت از یک پرچم و یک توپ. اجرای این عملیات بر اساس طرحها و مدلهایی به مقیاس یک-سوم از سوی استاد صدیقی به اجرا درآمد. آگراندیسمان مجسمهی سوار با گچ، و سه مجسمهی دیگر، ابتدا با خاک رس و بعد با گچ قالبگیری شد. سیستم ریختهگری نیز با اصول مومِ آبشده اجرا شد و بهترین نوع برنز موجود به کار رفت که ضخامت متوسط آن در قاعدهی مجسمهی سوار، 10 تا 15 میلیمتر، در اسب و سوار 5 تا 20 میلیمتر و در سایر مجسمهها 4 تا 8 میلیمتر بود. تمامی مجسمه از داخل دارای شبکههای اتصالی بوده و سطوح برنزی با رنگ شیمیایی خالص، زنگار شد. در دهم تیرماه 1339 شش صندوق حاوی اجزاء مجسمه و متعلقات آن از بندر لیوورنو (Livorno) به سمت ایران حرکت کرد، سپس با قطار از خرمشهر به مشهد منتقل شد و در 28 مرداد 1339 به این شهر رسید. محتویات آن صندوقها به شرح زیر بود:
- صندوق محتوی مجسمهی نادرشاهِ سوار بر اسب و متعلقات آن، به وزن تقریبی 9000 کیلوگرم
- صندوق محتوی سرباز شیپورزن، به وزن تقریبی 1500 کیلوگرم
- صندوق محتوی سرباز بیرقدار، به وزن تقریبی 1300 کیلوگرم
- صندوق محتوی سرباز تفنگدار، به وزن تقریبی 1300 کیلوگرم
- صندوق محتوی نیم برجستهی آرم نادرشاه و بدنهی پشت دو سرباز، به وزن تقریبی 1000 کیلوگرم
- صندوق محتوی وسایل کار، به وزن تقریبی 500 کیلوگرم
در 13 شهریور کار بتنریزی پایه به پایان رسید و مجسمه در 17 آبان 1339 در محل خود قرار گرفت. هزینههای ساخت، حمل و نصب مجسمه 4,304,887 ریال تمام شد. تحویل موقت آرامگاه نادرشاه در روز سه شنبه 25 خرداد 1338 انجام شد و در روز پنجشنبه 17 اسفند 1340 تحویل قطعی صورت گرفت. اما یک توپ جنگی در محوطهی آرامگاه قرار دارد که داستان جالبی به این قرار در دل آن نهفته: در سی و پنجمین سال شهریاری شاه عباس بر ایران، سپاهیان ایران به فرماندهی امامقلیخان، سردار نامی و فرمانروای فارس، پس از چندماه نبرد سخت (از بهمن 1000 تا اردیبهشت 1001 خورشیدی) بیگانگان و متجاوزین به خاک کشور را از جزیرهی هرمز و دژ نظامی و مستحکم –موسوم به البو کرک- بیرون رانده و پرچم دولت پرتقال که بیش از یک قرن بر فراز آن دژ افراشته بود را فرود آوردند. پس از سقوط دژ، غنایم جنگی فراوانی از جمله توپ، زنبورک و منجنیق، به دست سپاهیان ایران افتاد که آنها را به بندر گمبرون (بندر عباس فعلی)، لارو (در شیراز) و اصفهان فرستادند. لولهی توپی که امروز در کنار آرامگاه نادر است، یکی از غنایم جنگی همان نبرد پیروزمندانه است که پس از انتخابشدن تهران بهعنوان پایتخت، از شیراز به این شهر منتقل شد و بعدها به پیشنهاد انجمن آثار ملی، در کنار آرامگاه نادر قرار گرفت تا بیشتر و بهتر در معرض دید عموم و یادآور دلاوریهای ایرانیان در حفظ مرزهای کشور باشد. این توپ جنگی از نظر هنری هم اثری ممتاز به شمار میرود و نوشتههای روی آن چنین میرساند که به سال 970 خورشیدی (999 ه.ق) و در زمان سلطنت فیلیپ دوم، پادشاه اسپانیا، ساخته شده بود. توجه سیحون به روحیه و زندگی نادرشاه افشار در طراحی و اجرای آرامگاه آن پادشاه مشهود است. وی میگوید: «شکل کلی و مقبرهی نادر، ششضلعی متناسبی است که شکل سیاهچادرها را تداعی میکند. دلیل این امر همین نکته است که نادر، به جای کاخ در زیر چادر زندگی میکرد.»
آرامگاه پیشین نادرشاه افشار
توپ جنگی غنیمت گرفته شده از پرتغالی ها، کنار آرامگاه نادرشاه
اقامه ی نماز بر استخوان های به جامانده از نادرشاه
بنای آرامگاه نادر، سقفی به شکل چادر عشایر دارد و دیوارهای سرخ به نشانهی پایداری و ستونهای مستحکم به نشانهی اقتدار سرزمین تحت فرمانروایی نادر هستند. نمای ساختمان تعمداً به گونهای صاف و بدون برجستگی ساخته شده تا همچون شخصیت خود نادرشاه، محکم و استوار به نظر برسد. بنای آرامگاه نادر به موجب صلابت و استواری و فن معماری، تا مدتها مورد توجه متخصصان بوده و مجلهی Aujourd’hui (با محتوای تخصصی معماری و هنر) در شمارهی 25 خود، به معرفی و تشریح این اثر پرداخت و آن را در ردیف ساختمانهای برجستهی معاصر معرفی کرد. علیاکبر صارمی تجربهی بازدید آرامگاه نادر پس از گذشت چند سال را چنین بازگو میکند:
به ضرورت بازدید از پروژهای در حال ساخت در مشهد در سال 1386 برای چندمینبار فرصت دیدار از آرامگاه نادر، کار سیحون برایم مهیا شد. به نظر من این بنا از بهترین آثار اوست. نحوهی تراش سنگهای گرانیت در نما و چگونگی چیدن آنها کنار هم، از شاهکارهای معماری ایران محسوب میشود. همچنین فضای خاص سرپوشیدهی نیمهباز بنا با ترکیب سنگ و بتن، کیفیت بینظیری را فراهم آورده که همیشه برایم آموختنی است. اینبار با خواندن بیت شعری از مـولانا که زیر مجسمهی نادر قرار داشت به کشف تازهای رسیدم:
این که یک دیـدن کنـد ادراک آن سـالها نـتـوان نـمـودن با بیان
در پس این شعر پرمفهوم و موجز، معانی بسیار عمیقی نهفته است؛ آیا میتوان حس دیدن یک اثر معماری را در قالب کلمات گنجاند؟ آیا میتوان معماری و دیگر هنرهایی که با دیدن، سر و کار دارند را توصیف کرد؟ هنگام آموزش معماری، ما با “دیدن” سر و کار داریم؛ باید خوب دید، درست طراحی کرد و مناسب ساخت. در صورتی که در برنامهی درسی چند دههی اخیر از آموزشِ “دیدن خلاقانه” خبری نیست و به جای آن، خواندنیهای مربوط و نامربوط فراوان یافت میشود.
نصب سنگ قبر نادرشاه
استخوان های نادرشاه درون پارچه جهت خاکسپاری در آرامگاه جدید
آرامگاه پیشین نادرشاه افشار
Shah Abbas relocated the Afshar tribe to the region of Kabkan (or Kobkan) so that they might resist the attacks of the Uzbeks. One member of this tribe was named Emamqoli, who was a sheepskin tailor. On the 28th of Muharram in the year 1100 AH, in the Valley of Gaz, he had a son whom he named—after his grandfather—Nader Qoli or Nadr Qoli. This child later became known as Tahmasp-qoli and, after many turns of fortune and numerous battles, became Nader Shah Afshar, the powerful ruler of Iran. The fame of Nader’s conquests and bravery is widely known. In the month of Safar 1151 AH, Nader Shah marched to India, and after a fierce battle, returned to his country in 1152 AH with abundant spoils, and built a palace for himself in the region of Kalat. In the Dagestan war, which lasted a year and a half and caused heavy losses, he blinded his own son, Reza-Qoli Mirza, in both eyes. The violence and severity of Nader in the last years of his life—having taken on an utterly unjust nature—gave his opponents the pretext to rise against him. One night, when Nader and his army were marching toward Khobushan to suppress the rebels and had encamped in Fathabad, he was killed inside his tent at midnight on Sunday, the 12th of Jumada al-Thani 1160 AH, by several commanders from the Afshar and Qajar clans. Sheikh Mohammad-Ali Hazin Lahiji, in his history concerning the state of Iran in the late Safavid period, the uprising of Mahmud, and the reign of Nader Shah, has written: Nader Shah undertook the repair and adornment of the building and the blessed sanctuary of the Holy Shrine of Imam Reza—peace be upon its dwellers. He decorated some of the lofty structures of that sacred courtyard entirely with golden bricks, and brought a stream of water from the foothills of that region, adding it to the main canal that passes through the courtyard of the shrine. In that city he built a magnificent mausoleum for himself and completed it. After its completion, they found this verse written upon the wall of that tomb:
«در هیچ پرده نیست که نباشد نوای تو / عالم پر از تو و خالیست جای تو»
“In no veil is your melody absent;
the world is filled with you, and your place is empty.”
After the tragedy of his assassination, Nader’s head and body were taken to Mashhad and buried in the same mausoleum he had built years earlier in Bala Street. The structure of this tomb consisted of a portico at the front, with two small rooms and corridors on either side. The burial chamber was located at the center of the building, with two rooms to the east and two rooms to the west, and a relatively large room behind the burial chamber with two small corridors on its sides. The tomb, covering an area of 545 square meters, was situated in the middle of a garden, with a structure measuring 26 meters in length, 22 meters in width, and 6 meters in height above ground level. There was also a greenhouse in the northeastern corner of the garden and a ruined water reservoir on the eastern side. The surrounding wall of the garden was built to a height of 1.2 meters with brick, and then up to 1.75 meters with raw adobe. This building, over the subsequent periods, was gradually destroyed due to unrest, political turmoil, and neglect.
نمای اصلی آرامگاه و مجسمه ی نادر و قزلباش ها از دید ناظر
دید به آرامگاه از داخل باغ از جنوب غربی مجموعه
In the year 1917 CE (1296 Solar Hijri), when Ahmad Qavam (Qavam al-Saltaneh) was the governor of Khorasan, a group of members of the Khorasan Democratic Party who were interested in honoring Nader Shah Afshar, upon witnessing the condition of the monarch’s mausoleum—which had been turned into a carriage depot and a stable for coaches—resolved to act. With commendable effort, they demolished the carriage house and the adjacent and neighboring buildings, which had essentially been in the possession and control of influential figures of the time, in order to construct the Naderi Garden and rebuild a new mausoleum for Nader Shah. A structure was erected according to the limited means available at that time. This new building, too, eventually fell into decay and damage, until the Iranian Society for National Heritage (Anjoman-e Asar-e Melli) decided in Esfand 1333 (March 1955) to build, on the same site of the mausoleum built by Qavam al-Saltaneh, a monument befitting the stature of Nader Shah. In Esfand 1333, Mr. Ram, the governor of Khorasan, wrote a letter to governmental authorities, noting that during official visits to the province they had expressed interest in rebuilding Nader’s mausoleum, and that the provincial branch of the Society for National Heritage needed a budget of approximately two million rials to carry out the project. The authorities approved the implementation of the plan and announced that any necessary action and assistance would be provided for the Society. On 18 Esfand 1333, the plan and architectural proposal for the mausoleum of Nader Shah Afshar and his statue were put to competition by the Khorasan branch of the National Heritage Society through the newspaper Aftab-e Shargh, issue no. 4602, published in that city. The deadline for submission of proposals was set for the end of Khordad 1334. However, on 27 Farvardin 1334, the Society for National Heritage wrote to the governor of Khorasan requesting that, in order to avoid interference between various ongoing activities and until the Society’s central office in Tehran reached an appropriate conclusion, any further action in this matter be suspended. In Mordad 1334, the Society wrote to Houshang Seyhoun and Abol-Hasan Seddighi stating that, following in-person discussions with the Board of Directors of the National Heritage Society, the two of them should undertake the design of the architectural plans for the Nader Shah Afshar mausoleum and the creation of a suitable statue for the monarch, and prepare designs worthy of the memorial. This time, without holding a competition, the Society accepted Houshang Seyhoun’s proposal for the construction of the mausoleum and its accompanying elements (including the museum building, library, the caretaker’s residence, and the landscape design), and accepted Abol-Hasan Seddighi’s design for the statue. Seyhoun’s proposed design was sent to the Faculty of Fine Arts and, on 20 Aban 1334, was approved by Mohsen Foroughi, the then-dean of the faculty. The execution contract between the Society and the contractor company K.J.T. was concluded on 22 Mehr 1335, in a meeting convened by the Society’s Board of Directors with the presence of Mohsen Foroughi, Abol-Hasan Seddighi, Houshang Seyhoun, and Abdol-Aziz Farmanfarmaian. According to the contract, all construction and installation operations, auxiliary buildings, site grading, and the enclosure of the grounds were to be completed and delivered within 24 months from the date of signing. The total cost of constructing the mausoleum, the statue pedestal, and all related site works was estimated at 24,230,000 rials.
Houshang Seyhoun and Hossein Jodat submitted their report on the study of the mausoleum site to the Society in Bahman 1335 (February 1957).
In their studies, it was determined and reported that: “The weakness of the soil up to a depth of five meters poses difficulties and will impose costs beyond the originally estimated amount. Concrete piling down to the firm soil layer and the installation of two reinforced-concrete slabs—one beneath the entire structure and another beneath the tower—at a depth of five meters are deemed necessary. The foundations of the main building and the tower base will begin from these slabs and will be filled up to ground level with layers of water-sprinkled, compacted soil. To prevent settlement of the ground, a layer of concrete will also be installed beneath the floor finish, and around the structure drainage will be provided to protect it from moisture damage.” As previously mentioned, the initial cost of the project had been estimated at 24,230,000 rials. However, following the engineers’ new observations and their recommendation to avoid repeating the experience of the Ferdowsi mausoleum (which had been damaged due to negligence), the cost changed, and an additional 5,766,600 rials was added to the original estimate — of which one million rials could be covered through other savings within the project. Therefore, in the contractor’s agreement, only 4,766,600 rials was added to the previous amount, bringing the final cost to 28,996,600 rials. On 20 Aban 1335 (November 1956), the Society signed a contract containing nine articles with Houshang Seyhoun, in which Seyhoun committed to delivering the architectural plans for the mausoleum—including the main building and the statue pedestal—as well as the landscape and auxiliary-building designs within five months from the date of signing. According to this contract, all technical calculations pertaining to the structural resistance of the building, along with detailed drawings, the metal roof structure, reinforced concrete plans, and the design of the water, electrical, and sanitary installations, as well as supervision responsibilities on behalf of the Society, were assigned to Seyhoun, with a fee amounting to 5% of the total construction cost. On 11 Azar 1335 (December 1956), the contracting company K.J.T. began the demolition of the previous Nader Shah mausoleum structure in preparation for construction operations. Another significant matter was the selection of an appropriate stone quarry for supplying the needed materials. To this end, the quarries of Kuhsangi, Vakilabad, and Tappe-Salam were inspected, and among them, after cutting, shaping, and sampling, the granite from the Kuhsangi quarry was found to be superior to the rest. Extraction and transportation of the stone to the site were carried out by tow trucks of the Khorasan military division over 15 days. Seyhoun even selected the materials of his structures in accordance with the personality and life of each historical figure, and regarding the mausoleum of Nader Shah Afshar he stated: “The primary material of the building is the granite from the Kuhsangi region of Mashhad, known as Harkareh stone, which is one of the most durable stones in Iran. The reason for this choice is its reference to the strength and grandeur of Nader Shah Afshar.”

تصویر نادرشاه افشار در حالیکه تاج بر سر فرزند خود رضا قلی میرزا می گذارد. این تصویر در سال 1189 یعنی 29 سال پس از مرگ آن شهریار به وسیله ی ابوالحسن نقاشی شده است.
The present mausoleum of Nader Shah, located on the northwestern side of Shohada Square (formerly Naderi Square), is regarded—after the Holy Shrine of Imam Reza (A.S.)—as the most important historical and tourist site in the city of Mashhad. It also includes a garden in which the tomb of Mohammad-Taqi Khan Pessian (the Sardar of Khorasan) is situated on a grassy plot in its northern corner. Because the excavation and removal of soil for the foundation of Nader’s mausoleum required it, two temporary graves were prepared for the transfer of the remains: one for Nader and another for Colonel Mirza Taqi Khan Pessian, each placed inside separate wooden cases. After the construction of the new mausoleum was completed, on Thursday, 28 Mordad 1338 (August 19, 1959), at six o’clock in the evening, in the presence of Lieutenant General Farajollah Aqavali (then head of the Society) and several other officials and notable figures, the cases were opened, and their contents were placed into the graves following the recitation of the funeral prayer and religious rites, and then covered. Regarding the location of Nader’s bones, it is necessary to correct an error in historical documents. The late scholar Abbas Eqbal Ashtiani, relying on the Farsnameh-ye Naseri (written by the late Haj Mirza Hasan Shirazi), cites an account stating that in the events of the year 1210 AH, Agha Mohammad Khan Qajar, after ascending the throne, ordered the opening of Nader Shah’s grave, which was said to have been located next to the Shrine of Imam Reza (A.S.). According to that account, Nader’s bones were buried beneath the steps of the Golestan Palace, beside the bones of Karim Khan Zand, and that several years later, by order of Fath-Ali Shah Qajar, those remains were transferred to Najaf al-Ashraf and buried there. However, upon studying the events of the early Pahlavi era, it becomes clear that on one of the days of the latter half of the year 1304 (1925), the late Zia’ al-Vaezin Shirazi, accompanied by several descendants of the Zand family, attended a ceremony in the Khalvat-e Karimkhani chamber of the Golestan Palace in the presence of Reza Shah, during which they presented him with a sword that belonged to the Zand monarch. At that time, the burial place of Karim Khan Zand was opened in their presence, and his bones were handed over to his descendants so they could be taken to Malayer and buried there. Therefore, the claim that Karim Khan’s bones were buried in Najaf al-Ashraf is incorrect, because if the account in *Farsnameh* were accurate, Karim Khan’s bones would not have been found beneath the palace steps. Similarly, based on the existing documentation, the transfer of Nader’s bones to Tehran by Agha Mohammad Khan Qajar cannot be accurate either. Moreover, in Farvardin 1336 (April 1957), when Mr. Mostafavi (a founding member of the Society), together with several members of the Khorasan branch of the National Heritage Society, attended the site of Nader Shah Afshar’s mausoleum to open the grave and remove Nader’s remains, it was found that the bones were in their original location and in the same state in which they had originally been buried. The skull was missing its lower jaw, and marks consistent with axe blows—as described in historical records concerning his assassination—were visible on the upper and side portions of the skull. A separate skull had also been buried inside a clay vessel about thirty centimeters away, which was likewise preserved intact. Another piece of evidence appears in the mural of the “Conquest of India” on the eastern wall of the Chehel Sotoun Palace in Isfahan, which depicts Nader Shah in the Battle of Karnal. Beneath the painting, the following two verses are clearly written in large script:
به حسبالحکمِ شاهنشاهِ دوران
فریدونفَرِّ محمدخانِ قاجار
ز کلکِ صادقِ نقاش نو شد
نشان و نامِ نادرشاهِ افشار
Their translation:
By the command of the king of kings of the age,
the Fereydun-like Mohammad Khan Qajar.
By the pen of Sadeq the painter was renewed
the image and name of Nader Shah Afshar.
This indicates that Sadeq Khan, the well-known painter during the reigns of Agha Mohammad Khan Qajar and Fath-Ali Shah Qajar, executed—or more likely restored—this mural at the order of Agha Mohammad Khan. If Agha Mohammad Khan had harbored any intention of disrespecting Nader Shah, such an act would never have been carried out.

آرامگاه پیشین نادرشاه افشار
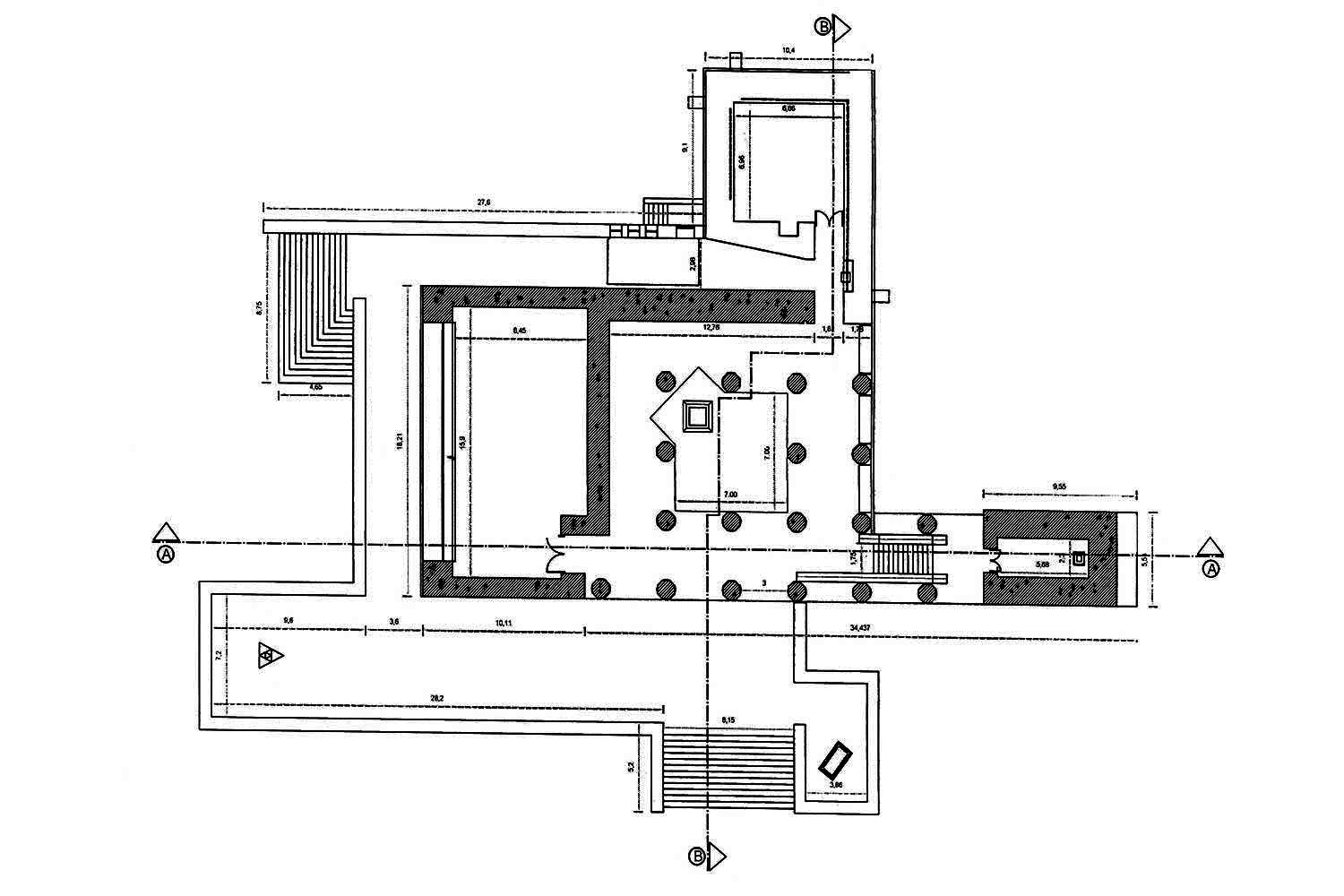
The land of the mausoleum garden, including both the garden area and the space beneath the mausoleum structures, measures 14,407 square meters. The main built area of the mausoleum is 1,200 square meters, which together with the statue occupies 1,307 square meters. The other spaces—such as the reception area, guardroom, service installations, and greenhouse—occupy 378 square meters. The surrounding garden is bordered on all four sides by public pathways, and its boundary wall, 70 centimeters thick and 50 centimeters high, is built from granite combined with iron railings shaped like battle-axes. The mausoleum and memorial structure consist of a platform with twelve steps, the burial chamber, a tent-like canopy above the tomb, a raised platform beside it, a tall tower constructed to support the ensemble of statues depicting Nader Shah on horseback with accompanying Qizilbash warriors (referring to Nader’s troops), a booth for book sales, and two halls forming the museum that houses various weapons. The building is designed based on two geometric forms—square and triangle—and for this project, a stone-carver named Putro Grovovich from Yugoslavia was hired. In all parts of the structure—including the façade, walls, and columns—massive granite blocks from Kuhsangi were used, while its triangular roof was built from reinforced concrete. All exterior surfaces are exposed reinforced concrete, and the interior wall coverings are travertine. The main mausoleum structure includes three interconnected porticoes—eastern, southern, and western—along with three corridors and staircases. Two porticoes face the adjacent streets, and the third faces the statue tower. The width of the porticoes ranges from 3.5 to 6 meters, and their height from the garden floor is 1.83 meters. At the entrance façade, the large museum lies to the left, and the tower-like base of the statues lies to the right. A massive stone cornice spans both sides, covering the main entrance and uniting the two parts. The tower base and statue ensemble are designed in a way that evokes a sense of attack or charge. The innovation of this cornice lies in its simplified and modern interpretation of the Roman arch: in this method, the bricks, keystones, or crown stones that once distributed the forces of the arch into the supports are reduced to a single triangular stone at the center and two lateral stones; thus the arched vault becomes a straight, level lintel. In this structure, all key triangular pieces are equilateral, while the rest are right-angled triangles, beveled at the top. This same technique is repeated inside the mausoleum hall. The façade of the complex, in the area between the statue ensemble and the small museum, is built—especially in the main elevation—without any projections; the carvings and stonework are entirely recessed from within, intended to enhance the monument’s visual force and clarity. Only on the small museum’s wall do three large stone spouts project outward, primarily for aesthetic purposes. The entire structure stands on a platform raised 2 meters above ground level. The mausoleum hall is a square chamber enclosed on two sides by thick red stone walls with column structures. Inside this hall, a large square ceiling with triangular carvings on both its interior and exterior—higher than the surrounding areas—has been constructed so that four large triangles overlooking the eight inner columns admit soft yellow light through thin slabs of Yazd marble carved with geometric patterns.
Overall, the building consists of four main parts:
1. A hall measuring 15.5 × 8.4 meters, with seven large windows facing south and Naderi Street;
2. The main tomb chamber measuring 15 × 15 meters, with side areas approximately 4 meters wide and 2.5 meters high, surrounded by sixteen monolithic stone columns each 2.26 meters tall; the tomb ceiling rises more than 6 meters high, and the surrounding walls are made of red marble. Nader’s grave lies in a corner of this chamber;
3. A tower to the northeast of the structure, connected to the main building through two monolithic stone columns 4.09 meters high. The tower stands 12.5 meters tall, with a base measuring 9.5 × 5.5 meters that narrows to approximately 8 × 4 meters at the top. The statue of Nader Shah on horseback in attack posture stands atop the tower, and the statue of three Qizilbash soldiers is placed on another part of the tower’s body, two meters below the summit;
4. The museum building, measuring 7 × 7 meters, located northwest of the tomb chamber.
The interior walls of the great hall and museum are lined with white travertine, and beneath the western portico adjoining the mausoleum, two sanitary facilities have been constructed.
بازدید از آرامگاه و مجموعه، دکتر سیاوش تیموری، دکتر کوروش حاجیزاده، دکتر سیروس باور، استاد داریوش بوربور و شهریار خانیزاد
The gravestone of Nader Shah is placed in a corner of this square-shaped hall, positioned between two walls and facing outward. The tombstone is designed as a truncated prism, each of its sides measuring approximately 2 meters at the base and 1.5 meters at the top, and upon it lies a raised brass plaque inscribed with the following: “The resting place of the mighty monarch of Iran, who was born in Muharram 1100 AH and died in Jumada al-Akhir 1160 AH.” Instead of two other walls, columns have been placed. The angled position of the tomb, the sense of shelter and openness, the walls, the columns, the red color, and the various protrusions emerging from the stone surface—all evoke the numerous wars of Nader Shah. The surrounding columns of the main hall are designed with square bases, while their upper parts are rotated 45 degrees in relation to the bases, creating eight triangles: four bases upward and four downward—symbolizing the hats of Nader’s soldiers (though Houshang Seyhoun, in his book Contemporary Architecture of Iran, attributes the column design to Nader’s own hat). Sixteen of these columns are 2.26 meters high, and two others exceed 4 meters, all carved from single blocks of granite. The mausoleum contains three interconnected porticoes—eastern, western, and southern—and three corridors with stairways. The war museums are built two meters above ground level and contain the following: one holds military equipment from the era of Nader Shah and other periods, including various Afsharid-era weapons, paintings of Nader and battle scenes, equestrian gear such as saddles and bridles from the Afsharid to Qajar eras, several manuscripts including the Tarikh-e Jahangosha-ye Naderi, and two swords belonging to Nader. On one sword, the phrase “al-Sultan Nader” is engraved, and on the other, this verse is inscribed in gold:
شاه شاهان نادر صاحبقران
گشت سلطان سلاطین جهان
Translation:
Nader, king of kings, lord of the auspicious conjunction,
became the sovereign of the rulers of the world.
This sword was presented to him in the plain of Moghan in the year 1148 AH on the day of his coronation by the people of Iran.
The second museum was added to the complex in 1373 (1994) and contains coins, vessels, and other objects from the Safavid period to the present. The metal doors of the museums, the tower’s base, and the railings surrounding the garden all evoke the shape of Nader’s battle-axe. In designing the flowerbeds surrounding the tomb, the primary geometric shapes of the square and triangle were used. The pools and water features around the mausoleum were all constructed according to the traditional design principles of Persian gardens, and in one corner of the garden, auxiliary buildings such as the assembly hall, library, and greenhouse were constructed, fully harmonized with the main structure. Within the garden, four water pools are located at three corners of the main building: one measuring 12.5 × 12.5 meters; another triangular pool with a base and height of 6 meters; a third pool opposite the auxiliary building measuring 8 × 4.5 meters; and a fourth small pool behind the auxiliary building. All pools are approximately one meter deep; the first three are connected by open water channels—all made of stone and cement. The rest of the area includes pathways, grass plots, and stone-edged garden beds. The auxiliary building, with an area of nearly 200 square meters, consists of three rooms—two measuring 4.5 × 4.5 meters, and a third measuring 6 × 10 meters—which include a restroom, two corridors, a shower, and a kitchenette. Nearby stands the mechanical room, measuring 5 × 8 meters and located underground. Close to it, the greenhouse is situated, and on the other side of the building, a semi-deep well was constructed to supply water to the mausoleum. On the left side of the entrance façade, near the large museum, there is a stone basin made of granite, whose upper surface forms an equilateral triangle. From the side views, one can see that six large and small triangles, alternating, compose its volume. Another prominent part of the complex is the statue of Nader Shah, placed atop a tall pedestal, depicting him on horseback accompanied by several Qizilbash soldiers. The design of the mausoleum emphasizes that Nader’s equestrian statue and his soldiers should be mounted on a base connected to the tomb at a height worthy of his stature, while also reflecting the monarch’s spirit—defined by determination, power, simplicity, and austerity. For this reason, drawing inspiration from suitable elements of Iran’s historic architecture and specifically from the Tarikhaneh Mosque of Damghan, a strong structure of large, carved granite stones of Khorasan was built, using massive granite slabs from Kuhsangi in Mashhad for the exterior and monolithic granite columns. The interior decoration and finishes were made from travertine stone to reflect the strength and simplicity of the Afsharid king. As mentioned earlier, along with the mausoleum design, the statue of Nader Shah was also commissioned to Master Abolhassan Seddighi. According to the Society’s records, Seddighi was tasked with installing the equestrian statue of Nader Shah in the location designated in Houshang Seyhoun’s design. In Aban 1335 (November 1956), Seddighi committed to preparing a full-scale plaster model of Nader. For the bronze casting of the statue, he traveled to Italy, and on 7 Esfand 1335 (February 26, 1957), he informed the Society that three foundries in Florence, Naples, and Rome had expressed readiness to cast the statue. Among them, the Bruni Foundry in Rome was deemed most suitable due to its superior equipment and lower cost. On 4 Ordibehesht 1337 (April 24, 1958), a contract in seven articles was signed between the Iranian Society for National Heritage and the Bruni Foundry, assigning the work to that institution. The Bruni Foundry also dispatched a specialist to Mashhad to assist with installing the statue on site.
مقطع شمالی
نقشه ی نمای جنوبی
نقشه ی نمای شرقی
مقطع A-A از نمای شرقی
نمای جنوبی
نقشه ی نمای شرقی
نقشه ی نمای شمالی
نقشه ی نمای غربی
The obligations of the Bruni Foundry consisted of enlarging the models, taking molds, and casting in bronze the equestrian statue of Nader Shah together with the soldiers, all based on the model designed by Master Seddighi. The equestrian statue measured five meters in height (from the base of the statue to the top of the rider’s head), with a base measuring 2.5 × 4 meters (the height of the statue calculated according to the horse’s rearing posture on two legs). There were also three other statues, each three meters tall, with joints and connecting sections—one being a relief bust measuring 1.30 × 1.83 meters—along with two additional subsidiary components consisting of a flag and a cannon. The execution of this work was based on one-third scale models prepared by Master Seddighi. The enlargement of the equestrian statue was modeled in plaster, while the three other statues were first shaped in clay and then cast in plaster. The casting system was carried out using the lost-wax method, and the best available type of bronze was used, with an average thickness of 10 to 15 millimeters at the base of the equestrian statue, 5 to 20 millimeters in the horse and rider, and 4 to 8 millimeters in the other statues. The entire set of statues contains internal metal armatures, and the bronze surfaces were patinated using pure chemical treatments. On 10 Tir 1339 (July 1, 1960), six crates containing the components of the statues and their accessories departed from the port of Livorno for Iran. They were then transported by rail from Khorramshahr to Mashhad and arrived there on 28 Mordad 1339 (August 19, 1960). Their contents were as follows:
1. Crate containing the equestrian statue of Nader Shah and its accessories, approximately 9,000 kg
2. Crate containing the bugler soldier, approximately 1,500 kg
3. Crate containing the standard-bearer soldier, approximately 1,300 kg
4. Crate containing the rifleman soldier, approximately 1,300 kg
5. Crate containing the relief emblem of Nader Shah and the rear body connecting the two soldiers, approximately 1,000 kg
6. Crate containing work tools, approximately 500 kg
On 13 Shahrivar (September 4, 1960), the concrete pouring for the base was completed, and on 17 Aban 1339 (November 8, 1960), the statue was installed in its designated position. The total cost of producing, transporting, and installing the statue amounted to 4,304,887 rials. The temporary handover of the Nader Shah Mausoleum took place on Tuesday, 25 Khordad 1338 (June 15, 1959), and the final handover occurred on Thursday, 17 Esfand 1340 (March 8, 1962). A war cannon stands in the mausoleum grounds, bearing an intriguing story: In the thirty-fifth year of Shah Abbas’s reign over Iran, Iranian forces under the command of Imamqoli Khan—the famed commander and governor of Fars—after several months of fierce battle (from Bahman 1000 to Ordibehesht 1001 Solar Hijri), expelled the foreign invaders from the island of Hormuz and from its fortified citadel known as Albu Kerk. The Portuguese flag, which had flown over the fortress for more than a century, was lowered. After the fall of the fortress, numerous spoils—including cannons, swivel guns, and catapults—fell into the hands of the Iranian forces, who sent them to the ports of Gombroon (modern Bandar Abbas), Lar (near Shiraz), and Isfahan. The cannon barrel that stands today beside the Nader Mausoleum is one of those war trophies from that victorious campaign. After Tehran was chosen as the capital, it was transported there from Shiraz, and later, at the proposal of the National Heritage Society, it was placed beside Nader’s mausoleum so it would be more visible to the public and serve as a reminder of the bravery of Iranians in defending the country’s borders. Artistically as well, the cannon is considered an exceptional work, and its inscriptions indicate that it was cast in 970 Solar Hijri (999 AH), during the reign of Philip II, King of Spain. Seyhoun’s attention to the spirit and lifestyle of Nader Shah Afshar is clearly visible in the design and construction of the mausoleum. He says: “The overall form of Nader’s tomb is a well-proportioned hexagon that evokes the shape of the black nomadic tents. The reason is that Nader lived beneath tents instead of palaces.” The roof of the Nader Mausoleum resembles the tent of nomadic tribes; its red walls symbolize endurance, and its sturdy columns symbolize the power of the land over which Nader ruled. The façade was deliberately designed smooth and without projection so that, like Nader’s own character, it would appear firm and unwavering. Due to its strength, stability, and architectural technique, the mausoleum attracted professional attention for years, and the magazine Aujourd’hui (specializing in architecture and art), in its 25th issue, introduced and analyzed this work, identifying it as one of the noteworthy contemporary structures. Ali Akbar Saremi recounts his experience revisiting the Nader Mausoleum years later: “During a necessary visit to a construction project in Mashhad in 1386 (2007), I had the opportunity once again to visit Seyhoun’s Nader Mausoleum. In my opinion, it is one of his best works. The method of carving the granite façade stones and arranging them together is one of the masterpieces of Iranian architecture. The semi-open interior space, combining stone and concrete, creates an extraordinary quality that has always been educational for me. This time, upon reading a verse by Molana placed beneath Nader’s statue, I discovered something new:
این که یک دیدن کند ادراک آن
سالها نتوان نمودن با بیان
‘What a single glance may grasp
cannot be conveyed through years of speech.’
Within this profound and concise verse lies a deep meaning: Can the feeling of seeing a work of architecture be contained within words? Can architecture, or other visual arts, truly be described? In teaching architecture, we deal with seeing. One must see well, design correctly, and build appropriately. Yet for decades, our academic curriculum has lacked the teaching of creative seeing—replaced instead with an excess of relevant and irrelevant readings.”

عکاس: حسین برازنده
1. موزهی اصلی 2. موزهی کوچک 3. مقبره
پلان معکوس سقف
پلان باغ و ساختمان آرامگاه و بناهای متصل به آن
پلان مجموعه ی آرامگاه

به ترتیب از راست: دکتر سیاوش تیموری، دکتر کوروش حاجیزاده، دکتر سیروس باور، استاد داریوش بوربور
عکاسان: حسین برازنده، شهریار خانیزاد
















































































